Te koop Woningen aan De Kom

Beschrijving van   

Vergelijk realty's

Te koop Woningen aan De Kom

Woningen aan De Kom Woningen aan De Kom Woningen aan De Kom Woningen aan De Kom
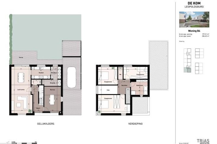
In het aanbod van de 2° fase aan De Kom Leopoldsburg - RESIDENTIE BAKBOORD - bouwen we eveneens 11 moderne woningen op de site van De Kom. DE GETOONDE PRIJS IS DE ZE VOOR DE CASCO uitvoering, zodat u nog zelf de afwerkingen kan doen. Wij bespreken graag samen een passend voorstel. Hier heeft u de keuzen tussen woningen van het type Half Open Bebouwing met ruimte voor een carport op een type ¨Gesloten Bebouwing" met een inpandige garage. Alle woningen zijn volgens de hedendaagse normen gebouwd en hebben verwarming via warmtepomptechnologie, aansluiting op zonnepanelen, vloerverwarming, ventilatiesysteel D, actieve koeling in iedere kamer. De nieuwe eigenaars kunnen vanaf de tweede helft van 2025 genieten van het permanent vakantiegevoel in hun nieuwe thuishaven. De uiteindelijke EPC waarde zal < 30 bedragen, zodat de appartementen voldoen aan de "BEN" norm. Door deze ¨Bijna Energie Neutrale" score, bespaart u ook op uw onroerende voorheffing. Maar de afweking garandeert natuurlijk een hedendaags en levensbestendig wooncomfort in een veilige en rustige omgeving met heel veel aandacht voor water en groen. Voor een persoonlijk afspraak neem contact op met ImmoH2O bruno@immoh2o.be 0475 84 33 64
Type vastgoed Huis
Prijs 315.303
Bewoonbare opp. 197
Aantal slaapkamers 3
Aantal badkamers 1