Te koop Huis

Beschrijving van   

Vergelijk realty's

Te koop Huis

Huis Huis Huis Huis Huis Huis Huis Huis Huis
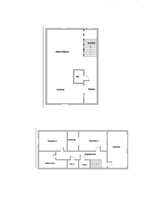
33400 - TALENCE - BARRIERE SAINT GENES. Échoppe de charme, emplacement privilégié, coup de coeur assuré ! Venez découvrir cette MAGNIFIQUE ÉCHOPPE d'une surface au sol totale de 105m², située à seulement 5 minutes à pied de la BARRIÈRE SAINT GENÈS. Ce bien unique marie harmonieusement l'ÉLÉGANCE de l'ancien avec le CONFORT moderne, pour une qualité de vie exceptionnelle. Vous serez immédiatement séduit par UN VASTE ESPACE DE VIE baigné de lumière naturelle avec HAUTEUR CATHEDRALE, rehaussé par une élégante mezzanine qui accentue la sensation de volume et de convivialité. Une cuisine aux lignes modernes et raffinées complète cet espace invitant à la détente et aux moments partagés. Dans l'entrée, un espace optimisé propose des rangements et un WC indépendant, assurant praticité et confort. En rez-de-jardin, vous découvrirez deux chambres, dont l'une dispose d'un dressing privatif. Une véranda chauffée , idéale pour des moments conviviaux et cosy vous conduira vers un charmant jardin de 50 m² exposé SUD, idéal pour profiter de moments de détente en extérieur en famille ou entre amis. Une salle de bains et un WC complètent ce niveau. Toutes les COMMODITES nécessaires au quotidien sont à PROXIMITE IMMEDIATE ; commerces, pharmacies, restaurants, tram B à 5 min A PIED, marché de Saint-Genès à 5 min A PIED. A 5 min A PIED de l'école maternelle et élémentaire. ACCES RAPIDE à QUINCONCES en SEULEMENT 20 min. ACCES FACILE à la GARE SAINT-JEAN (moins de 10min en voiture, 20min en
Type vastgoed Huis
Prijs 568.000
Bewoonbare opp. 101
Aantal slaapkamers 2
Aantal badkamers 1