Te koop Huis

Beschrijving van   

Vergelijk realty's

Te koop Huis

Huis Huis Huis Huis Huis Huis Huis Huis Huis Huis Huis
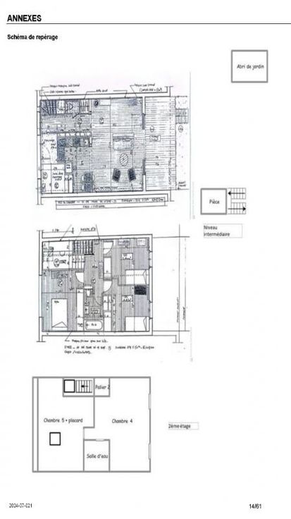
33800 - BORDEAUX - NANSOUTY. C'est idéalement située, à deux pas de la très prisée PLACE NANSOUTY que prend place cette maison rénovée sur 3 niveaux avec TERRASSE et JARDIN de 100m2 proposant 4 chambres et un bureau (possibilité 5 chambres). Cette maison spacieuse et LUMINEUSE est idéale pour une grande famille. Au rez-de-chaussée, vous trouverez un salon traversant baigné de lumière naturelle avec un accès direct à une terrasse ensoleillée et à un jardin privatif, une cuisine fonctionnelle bien EQUIPEE, une buanderie pratique, des espaces de rangements utiles, ainsi qu'un WC indépendant. Au premier étage, DEUX CHAMBRES côté jardin avec DRESSINGS intégrés, une CHAMBRE également dotée d'un grand DRESSING, et une salle de bains avec WC assurent un confort optimal. Un niveau intermédiaire propose un espace détente convivial parfait pour un coin lecture ou détente. Le deuxième étage s'ouvre sur un vaste espace polyvalent, idéal pour un BUREAU, une salle de jeux ou CHAMBRE SUPPLEMENTAIRE, une GRANDE 4e chambre avec double dressing et une salle d'eau indépendante. Cette maison propose en complément un GRENIER et un cabanon de jardin, utiles pour du stockage. A proximité de toutes les commodités nécessaires ; établissements scolaires réputés (carte scolaire Alain Fournier), COMMERCES de BOUCHE de la PLACE NANSOUTY et du SACRE-COEUR, et transports en commun . A 15min A PIED des NOUVELLES HALLES de l'ATELIER DES CITERNES. Accès GARE SAINT-JEAN facile (5min en BUS, 20 min A PIED).
Type vastgoed Huis
Prijs 697.000
Bewoonbare opp. 145
Aantal slaapkamers 4
Aantal badkamers 1