Te koop Eigentijds nieuwbouwproject in de Breydels...

Beschrijving van   

Vergelijk realty's

Te koop Eigentijds nieuwbouwproject in de Breydelstraat

Eigentijds nieuwbouwproject in de Breydelstraat Eigentijds nieuwbouwproject in de Breydelstraat Eigentijds nieuwbouwproject in de Breydelstraat
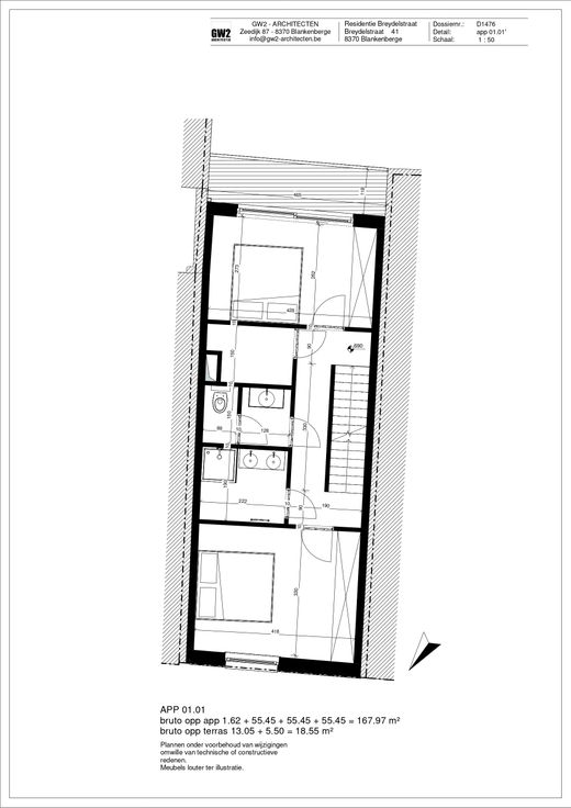
Eigentijds nieuwbouwproject in de Breydelstraat, vlak aan de Zeedijk en het commerciële centrum. Het project bestaat uit volgende BEN-appartementen: - één appartement (71 m² + 15 m²) met 1 slaapkamer, terras én tuin. - één appartement (168 m² + 18,5 m²) met 4 grote slaapkamers, 2 badkamers, 2 toiletten, 2 terrassen. +++ Leefruimtes met grote ramen vooraan en achteraan. +++ Elk appartement heeft zonnepanelen. +++ Warmtepomp / vloerverwarming. +++ Fietsenberging. +++ Autostandplaatsen in de onmiddellijke buurt.
Type vastgoed Appartement
Prijs 389.000
Bewoonbare opp. 187
Aantal slaapkamers 4
Aantal badkamers 2