Te koop Halfopen bebouwing met prachtige tuin te Hofstade (Aalst)!
Knap renovatieproject op een groot perceel te Hofstade.
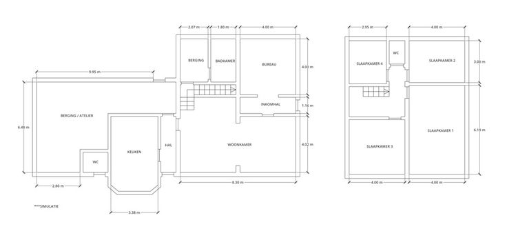
Men beschikt op het gelijkvloers over een inkomhal die rechts toegang geeft naar een ruime bureau ruimte en links de ruime woonkamer met eetplaats en de deels ingerichte keuken. Naast de keuken bevindt zich de badkamer (mogelijkheid om naar eerste verdieping te brengen). Achteraan de woning zijn er nog verschillende bijgebouwen.
Op de eerste verdieping zijn 4 slaapkamers terug te vinden. Op de tweede verdieping is er nog een ruime zolder aanwezig (voorzien van valluik), waar eventueel nog extra kamers gecreëerd kunnen worden.
Extra troef is achter de woning de grote west georiënteerde tuin & de ruime oprit voor meerdere wagens.
Zeer rustig gelegen te Hofstade & mits de nodige renovatiewerken kan dit een prachtig project worden.
Benieuwd naar deze mooie eigendom? Dan kan u meteen binnenkijken aan de hand van het virtuele bezoek op onze website.
Voor meer info en/of een bezoek, contacteer ons via aalst@immotijl.be of 053/42 46 99.