Te koop Huis

Beschrijving van   

Vergelijk realty's

Te koop Huis

Huis Huis Huis Huis Huis Huis Huis Huis Huis Huis Huis Huis Huis Huis Huis Huis Huis Huis Huis Huis
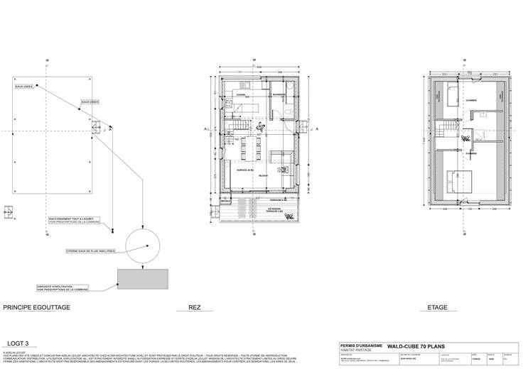
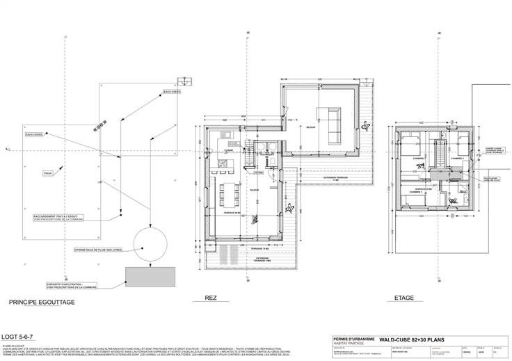
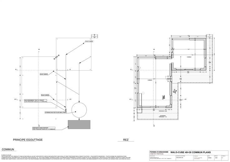
We presenteren dit unieke en atypische project van gegroepeerde en participatieve huisvesting! Het is in het hart van een kleine landschappelijke vallei van de Condroz Namurois, in een bucolisch en landelijk dorpje, op een weide van 2,5 hectare dat de toekomstige ecologische constructies op palen, bioklimatologisch en energiebesparend (concept WALD-CUBES van de coöperatieve Ecolodge) zullen worden opgericht. De geplande woonoppervlaktes variëren van 63 tot 110 m2, met de mogelijkheid om een bijgebouw van 30 m2 toe te voegen om de meeste eenheden aan te vullen. Het project omvat een aantal gemeenschappelijke ruimtes, zoals een multifunctioneel gebouw van 50 m2, een collectieve permacultuur moestuin, een weide en een boomgaard, een wetland om de biodiversiteit te vergroten, parkeerplaatsen, etc. De verkoopprijzen variëren afhankelijk van het model. Ze beginnen bij € 315.000 (inclusief btw), waarbij alles is inbegrepen: hoofdwoning, omgeving, grond, gemeenschappelijk gebouw, ontwikkelingskosten, btw, enz. De bouwvergunning is eind 2022 verleend, dus het project kan snel van start gaan in 2024. Neem contact met ons op voor meer informatie!
Type vastgoed Huis
Prijs 300.000
Bewoonbare opp. 110
Aantal slaapkamers 2
Aantal badkamers 1