Te koop Benedenverdieping

Beschrijving van   

Vergelijk realty's

Te koop Benedenverdieping

Benedenverdieping Benedenverdieping Benedenverdieping Benedenverdieping Benedenverdieping Benedenverdieping Benedenverdieping Benedenverdieping
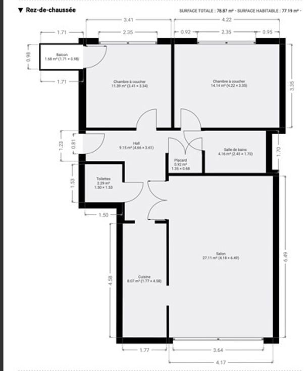
*** VENDU *** Appartement de +/- 90m2 habitables situé au rez-de-chaussée qui se compose comme suit : Hall d'Entrée, Grand et lumineux Séjour de +/- 37m2, Cuisine semi-équipée, 2 Chambres (+/- 11 et 14m2) dont une avec un petit Balcon, Salle de Douche, WC Séparé et Placard. Chauffage central au Mazout, Châssis Bois Double Vitrage. CAVE et GARAGE. Faire offre à partir de 90.000€ sous réserve de l'acceptation des propriétaires. A ne pas manquer !!
Type vastgoed Appartement
Prijs Op aanvraag
Bewoonbare opp. 90
Aantal slaapkamers 2
Aantal badkamers 1