Te koop Huis

Beschrijving van   

Vergelijk realty's

Te koop Huis

Huis Huis Huis Huis Huis Huis Huis Huis Huis Huis
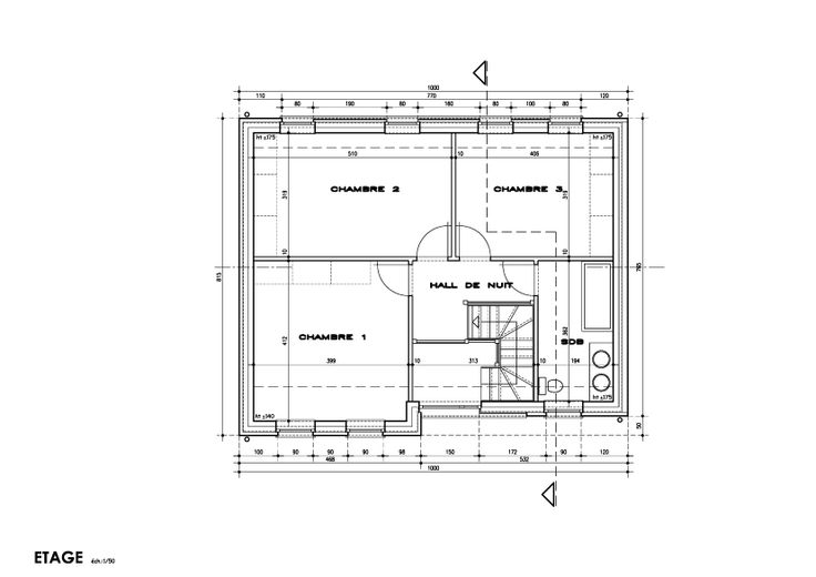
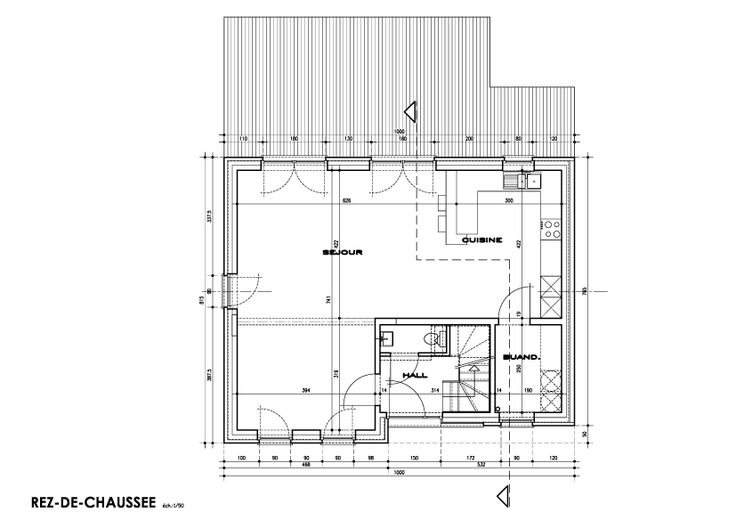
Maisons Compère, a le plaisir de vous proposer ce magnifique terrain à bâtir situé dans la belle entité de Cognelée. Ce terrain possède une superficie de 1109 m² avec une façade à rue de 26 mètres ainsi qu'une profondeur de 50 mètres. La E42 et E411 se trouvent à moins de 3km. Grâce à sa situation paisible, vous allez pouvoir profiter des commerces comme les supermarchés et les restaurant qui se trouvent à seulement 5km ainsi que des écoles. Ce projet de construction de 150m² se compose comme suit : Au rez-de-chaussée, vous retrouverez un séjour lumineux avec une cuisine ouverte, une buanderie, un hall d'entrée et un WC. Un hall de nuit, qui est à l'étage, vous donnera accès à 3 belle chambres ainsi qu'à une salle de bain. Ce projet est entièrement modulable et personnalisable en fonction de vos envies et de vos désirs. Prix du terrain + projet de construction : 360.816,00 € HTVA et frais d'architecte. Pour plus d'informations, nous restons disponible pendant les heures de bureau. Les images sont non contractuelles.
Type vastgoed Huis
Prijs 360.816
Bewoonbare opp. 150
Aantal slaapkamers 3
Aantal badkamers 1