Te huur Industriële gebouwen

Beschrijving van   

Vergelijk realty's

Te huur Industriële gebouwen

Industriële gebouwen Industriële gebouwen Industriële gebouwen
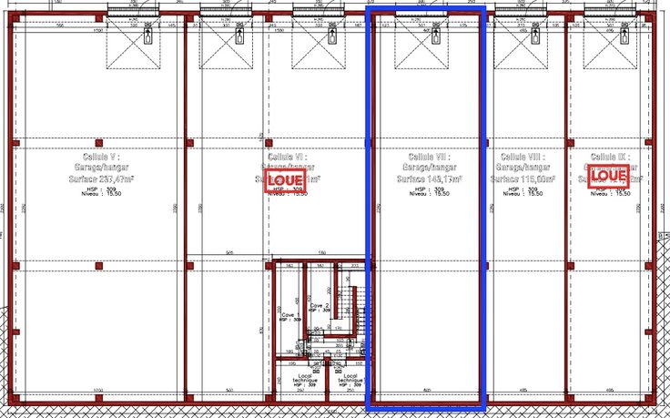
Ensemble d'entrepôts neufs à partir de +-115m² jusqu'à +-255m² - Hauteur sous poutre : 3,09 M - Porte sectionnelle électrique (hauteur 2,60M) - Dalle de béton lissée - Sanitaire - Electricité/eau - DISPONIBLE :DECEMBRE 2024 - Plusieurs combinaisons possibles - Prix: +-115m²:700€/mois, +-121m² : Loué , +-143m²: 800 €/mois, +- 203m² : Loué, +- 237m²: 1.150 €/mois. Renseignements: 0493/54.20.94 - sarah@immobarkus.com
Type vastgoed Commercieel
Prijs 800
Bewoonbare opp. 143