Te koop Nieuw te bouwen open bebouwing te Hekelgem

Beschrijving van   

Vergelijk realty's

Te koop Nieuw te bouwen open bebouwing te Hekelgem

Nieuw te bouwen open bebouwing te Hekelgem Nieuw te bouwen open bebouwing te Hekelgem Nieuw te bouwen open bebouwing te Hekelgem Nieuw te bouwen open bebouwing te Hekelgem Nieuw te bouwen open bebouwing te Hekelgem Nieuw te bouwen open bebouwing te Hekelgem Nieuw te bouwen open bebouwing te Hekelgem
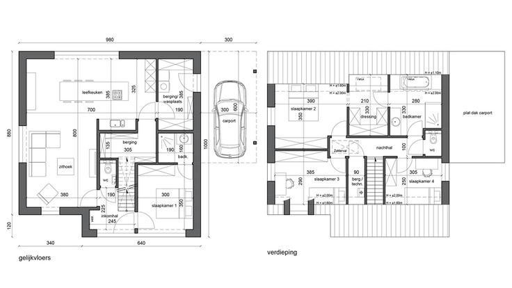
TE KOOP te Hekelgem, perceel bouwgrond voor open bebouwing met mooi groen zicht achteraan. Onze bouwpartner NB-projects bouwt hier voor U de woning van uw dromen, volledig op maat volgens uw wensen en budget! Grond + voorgestelde woning = 666.262 € ( prijs inclusief architect, metingskosten, EPB, landmeter,registratie, BTW op de constructie,...) Bouwmogelijkhden = 14,8 (10 m achteraan) x 15 m op het gelijkvloers en 10 x 12 m op de verdieping, 2 volledige bouwlagen, zowel plat dak als schuin dak mogelijk.. Verkavelingsdossier is momenteel ingediend bij dienst ruimtelijke ordening. Maak nu reeds uw afspraak voor verdere toelichting en vrijblijvende bespreking van de verschillende bouwmogelijkheden. email: info@denderimmo.be TEL: 0475 87 19 19
Type vastgoed Huis
Prijs 666.262
Bewoonbare opp. 162
Aantal slaapkamers 3
Aantal badkamers 1