Te huur Duplex

Beschrijving van   

Vergelijk realty's

Te huur Duplex

Duplex Duplex Duplex Duplex Duplex Duplex Duplex Duplex Duplex Duplex Duplex Duplex Duplex Duplex Duplex
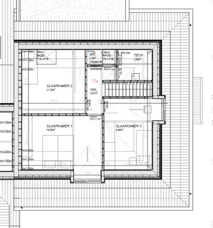
Onder de schaduw van de kerktoren op een zeer rustige locatie treft u deze volledig gerenoveerde pastorijhoeve bestaande uit verschillende energiezuinige woningen met gemeenschappelijke tuin.  Deze stijlvol gerenoveerde duplex woning treft u op de 1ste en 2de verdieping en bestaande op de 1ste verdieping uit een ruime inkomhal met apart toilet, een zeer ruime leefruimte met aansluitend  een volledig geïnstalleerde keuken(alle toestellen aanwezig) met terras.  Verder treft deze verdieping een ruime badkamer en een slaapkamer van 18m².  Via de traphal heeft u toegang naar de 2de verdieping.  Deze bestaat uit een ruime nachthal met apart toilet en wasplaats/berging alsook 3 ruime slaapkamers(14m², 12m² en 10m²).  Stijlvol gerenoveerd, energiezuinig(label A), geen gemeenschappelijke kosten.  Vanaf 15/10 beschikbaar!   Bent u kandidaat, surf dan verder naar onze website en meld u aan als kandidaat.
Type vastgoed Appartement
Prijs 1.195
Bewoonbare opp. 130
Aantal slaapkamers 4
Aantal badkamers 1