Te koop Prachtige nieuwbouwwoning met ideale ligging

Beschrijving van   

Vergelijk realty's

Te koop Prachtige nieuwbouwwoning met ideale ligging

Prachtige nieuwbouwwoning met ideale ligging Prachtige nieuwbouwwoning met ideale ligging Prachtige nieuwbouwwoning met ideale ligging Prachtige nieuwbouwwoning met ideale ligging Prachtige nieuwbouwwoning met ideale ligging
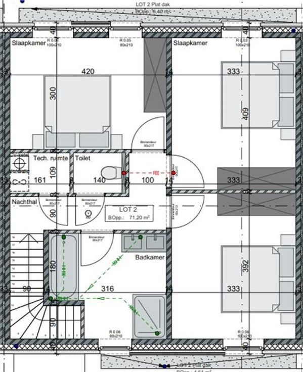
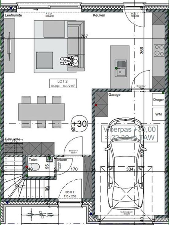
Gelegen vlakbij het station, maar toch op een erg rustige locatie, vinden we dit hoogwaardige nieuwbouwproject. De loten uit deze prachtige verkaveling bestaan uit een benedenverdieping met ruime eetplaats, zithoek en keuken, inkom, toilet en ruime garage. Op de bovenverdieping bevinden zich 3 slaapkamers, een nachthal, een ruime badkamer, een apart toilet en een technische berging. De woningen zijn erg lichtrijk, waarbij het leefgedeelte via een schuifraam uitgeeft op de zuid-gerichte tuin. Bovendien zullen deze prachtige woningen heel energiezuinig zijn (E-peil 10), door gebruik te maken van vloerverwarming (koeling ook mogelijk) via een warmtepomp en zonnepanelen. De binnenafwerking kan volledig zelf gekozen worden. Mooie budgetten zijn hiervoor voorzien. Contacteer ons gerust voor meer informatie! Renovatieplicht: onbekend
Type vastgoed Huis
Prijs 374.000
Aantal slaapkamers 3