Te koop Appartement

Beschrijving van   

Vergelijk realty's

Te koop Appartement

Appartement Appartement Appartement Appartement Appartement Appartement Appartement Appartement Appartement Appartement Appartement Appartement Appartement Appartement Appartement Appartement Appartement Appartement
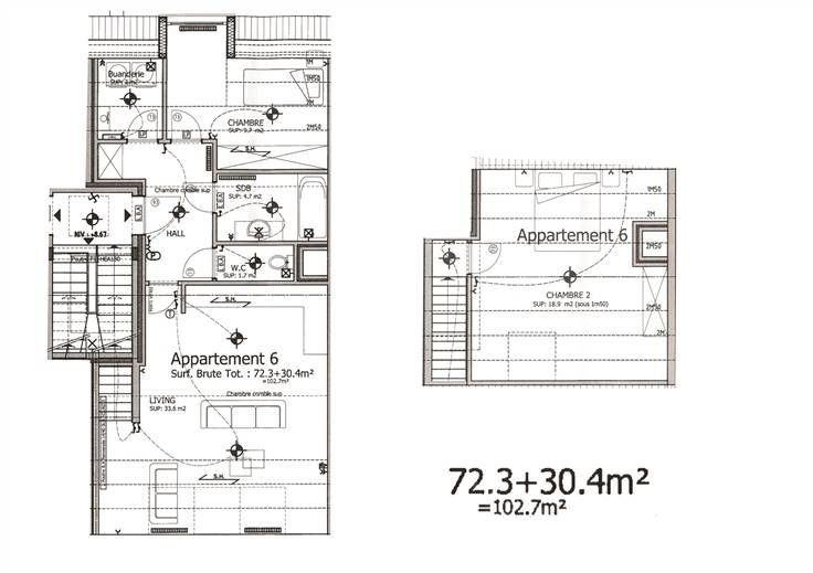
Sorry er is geen nederlandse vertaling beschikbaar. Sympathique appartement spacieux, lumineux, convivial… bref très agréable à vivre ! Une fois sur place, vous n’aurez plus qu’une seule envie : en devenir l’heureux nouveau propriétaire. Idéalement situé car au calme et à la fois proche de toutes les commodités et surtout proche des grands axes. Possibilité également de réaliser de belles balades dans les environs. Petite copropriété facile à gérer et peu couteuse, en effet, peu de logement et absence d’ascenseur. Appartement très spacieux à aménager comme vous l’entendez car possibilité de bureau, de plus de chambres… les possibilités sont multiples. Composition actuelle : hall d’entrée, agréable séjour ouvert avec cuisine équipée intégrée donc beaucoup de convivialité, WC indépendant avec lave-mains, salle de douche équipée elle aussi, buanderie et une chambre. Au second niveau : hall de nuit, 2 chambres supplémentaires ou bureau, dressing… en fonction de vos envies et de vos besoins. Également un garage offrant une solution de stationnement pratique et sécurisée. Appartement récent toujours sous garantie décennale, peu énergivore et très bien isolé, en effet, PEB B. Quelques caractéristiques utiles : châssis double-vitrage en PVC, chaudière gaz de marque Bulex assurant également la production de l’eau chaude, climatisation réversible, compteur bi-horaire, compteurs indépendants, béton + carrelage, parlophone. Familles, investisseur jeunes couples… qu’attendez-vous ? Inform
Type vastgoed Appartement
Prijs 219.900
Bewoonbare opp. 102
Aantal slaapkamers 3