Te koop Huis

Beschrijving van   

Vergelijk realty's

Te koop Huis

Huis Huis Huis Huis Huis Huis Huis Huis Huis Huis Huis Huis Huis Huis
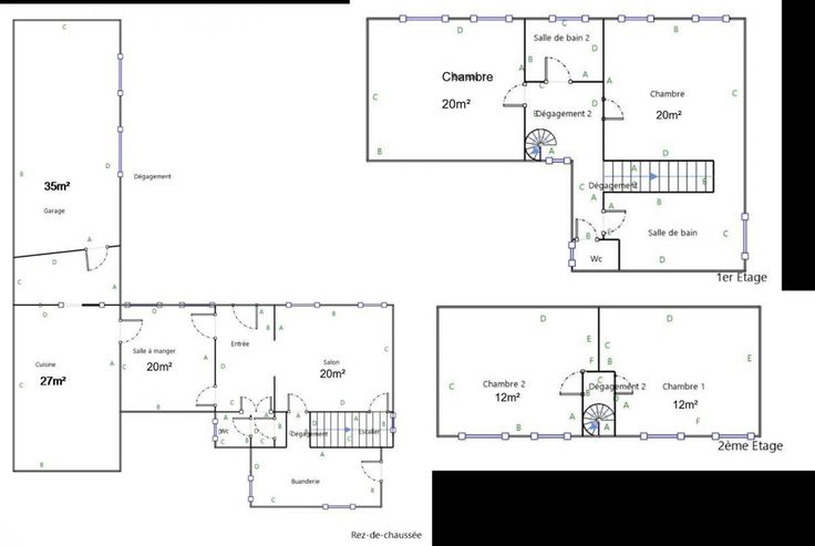
Vaudricourt 62231 Rare sur le secteur, Maison de caractère individuelle de 175m² hab sur un magnifique terrain arboré sans vis à vis de 840m². Cette propriété aux beaux volumes allie aménagements modernes et cachet de l'ancien. Elle comprend une cuisine éq de 27m² , une salle à manger + un salon avec cheminées auxquels s'ajoutent 4 chambres spacieuses et 2 SDB. A l'extérieur un garage de 35m² complète les prestations haut de gamme de la propriété. Prix 398.000 euros dont honoraires 3.6% à la charge de l'acquéreur soit 385.000 euros hors honoraires. DPE : D GES D . Estimation des coûts annuels d'énergie entre 2.490 euros et 3.420 euros Informations sur les risques disponibles sur le site : www.georisques.gouv.fr Pour visiter et vous accompagner dans votre projet, contactez Stéphane LAGACHE, au 0767462920 ou par courriel à s.lagache@proprietes-privees.com Cette présente annonce a été rédigée sous la responsabilité éditoriale de Stéphane LAGACHE agissant sous le statut d'agent commercial immatriculé au RSAC ARRAS 882 432 032 auprès de la SAS PROPRIETES PRIVEES, Réseau national immobilier, au capital de 40000 euros, 44 ALLÉE DES CINQ CONTINENTS - ZAC LE CHÊNE FERRÉ, 44120 VERTOU, RCS Nantes n° 487 624 777 00040, Carte professionnelle T et G n° CPI 4401 2016 000 010 388 CCI Nantes-Saint Nazaire. Garantie GALIAN - 89 rue de la Boétie, 75008 Paris. Mandat réf 367474 : - Le professionnel garantit et sécurise votre projet immobilier. (3.65 % honoraires TTC à la charge de
Type vastgoed Huis
Prijs 398.000
Bewoonbare opp. 175
Aantal slaapkamers 4
Aantal badkamers 2