Te huur Handelszaak

Beschrijving van   

Vergelijk realty's

Te huur Handelszaak

Handelszaak Handelszaak Handelszaak Handelszaak Handelszaak Handelszaak Handelszaak Handelszaak
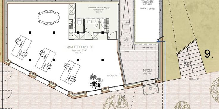
Bent u op zoek naar een moderne en perfect gelegen commerciële ruimte voor uw onderneming? Dit nieuwbouwpand in Heverlee biedt alles wat u nodig heeft om uw zaak succesvol te laten groeien. Gelegen aan de strategisch belangrijke Celestijnenlaan, vlakbij de Arenberg campus en Imec, is dit de ideale locatie voor bedrijven die willen profiteren van een uitstekende zichtbaarheid en bereikbaarheid. Ideaal als kantoor, vrije beroepen, fitness,... Beschrijving van het pand: Nieuwbouw: Het pand is momenteel in aanbouw en zal in december 2024 klaar zijn voor gebruik. Dit biedt u de unieke kans om de afwerking naar eigen smaak en behoeften aan te passen. Locatie: Gelegen aan de Celestijnenlaan, een belangrijke verbindingsweg in Heverlee, met directe nabijheid van de Arenberg campus en het wereldbekende onderzoekscentrum Imec. Flexibiliteit: Het pand kan eventueel samen met het naastgelegen pand, nummer D, gehuurd worden, voor extra ruimte en mogelijkheden. Samen zit je dan aan 340 m² Tuinpaviljoen: In de achterliggende tuin bevindt zich een charmant tuinpaviljoen dat ook te huur is, ideaal als extra vergaderruimte, ontspanningsruimte voor medewerkers of een unieke plek voor evenementen. Huurprijs 1650 € Parkeergelegenheid: Mogelijkheid tot het bijhuren van een tiental parkeerplaatsen, wat een groot voordeel biedt voor uw medewerkers en klanten. (met laadpaal mogelijk) Mis deze unieke kans niet om uw bedrijf te vestigen in een van de meest gewilde commerciële locaties van Heverlee. N
Type vastgoed Commercieel
Prijs 3.750
Bewoonbare opp. 117