Te koop Penthouse - Bio-based totaalrenovatie te k...

Beschrijving van   

Vergelijk realty's

Te koop Penthouse - Bio-based totaalrenovatie te koop - Tour & Taxis

Penthouse - Bio-based totaalrenovatie te koop - Tour & Taxis
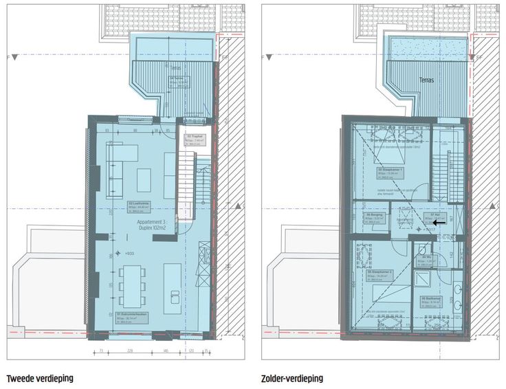
Meymo is een prestigieus renovatieproject dat een historisch douanegebouw uit 1906 nieuw leven inblaast, gelegen nabij Thurn & Taxis, Gare Maritime en het centrum van Brussel. Onder leiding van architectenbureau A2D uit Tervuren, combineert Meymo historische grandeur met moderne luxe.Het gebouw biedt drie ruime appartementen met unieke stijlen, variërend van een luxe eenkamerappartement tot een duplex met drie slaapkamers. Hoge plafonds van bijna vier meter zorgen voor lichte, luchtige ruimtes.Duurzaamheid is een kernpunt van Meymo. Bio-based materialen, individuele lucht/water-warmtepompen en geavanceerde ventilatiesystemen minimaliseren de ecologische voetafdruk. De appartementen zijn ontworpen voor energie-efficiëntie en comfort, zonder fossiele brandstoffen.Meymo creëert een gemeenschap waar wonen en werken samenkomen, met een gemeenschappelijke binnentuin voor ontspanning en ontmoeting.Met een geschatte EPC-score van B-, oplevering begin 2025, en alle moderne voorzieningen, zet Meymo een nieuwe standaard in luxe en duurzaam wonen in het hart van Brussel.
Type vastgoed Appartement
Prijs 585.000
Bewoonbare opp. 141
Aantal slaapkamers 2
Aantal badkamers 1