Te huur Commerciële panden

Beschrijving van   

Vergelijk realty's

Te huur Commerciële panden

Commerciële panden Commerciële panden Commerciële panden Commerciële panden Commerciële panden Commerciële panden Commerciële panden
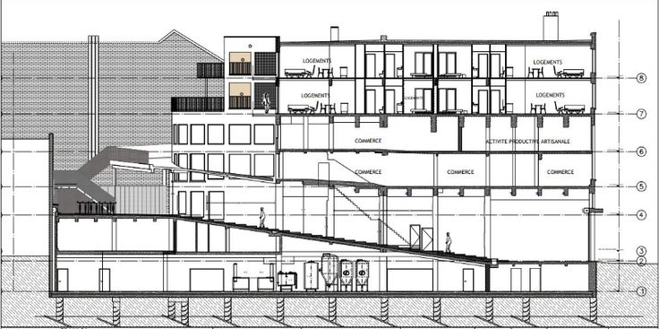
Monumentaal en bekend gebouw in de trendy wijk van de Antoine Dansaertstraat: twee verdiepingen van +/- 500 m² elk beschikbaar voor verhuur. Ze bevinden zich op de 1e en 2e verdieping. Veel voorzieningen in de buurt: restaurants, bars, museum. Uitstekende locatie met openbaar vervoer in de buurt. Bushalte op 130 meter (Brussel Dansaert), metro Sint-Katelijne op 550m en metro De Brouckere op 700m. Parkeren in de buurt. Mogelijkheid van progressieve huur. Meer info? Bel 02/513.77.00 Renovatieplicht: onbekend
Type vastgoed Commercieel
Prijs 12.000