Te koop appartement

Beschrijving van   

Vergelijk realty's

Te koop appartement

appartement
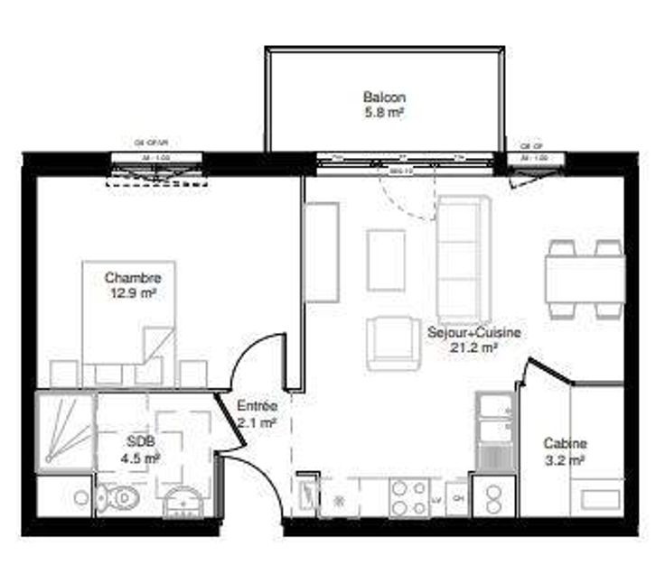
Sorry er is geen nederlandse vertaling beschikbaar. SAINTE-CECILE 1 Havre de nature et de tranquillité, Sainte-Cécile déploie ses longues plages de sable fin dans un environnement unique et préservé où l'on s'adonne aux nombreuses activités qu'offre le bord de mer et ses alentours. A quelques mètres de la plage et du centre-ville, la Résidence se situe rue de Bruay, rue calme et peu passante. Pour encore plus de sérénité, elle s'élèvera en retrait de la rue et accueillera 18 appartements tous prolongés de balcons ou de loggias. Les typologies sont variées : T2, T2 cabine, T3 et T4 pour que chaque type de famille y trouve son espace. A 3h de Bruxelles. Restent 9 appartements! 5 appartements rez-de-chaussée dont 4 appartements 1ch avec balcon de 43,80m² à 46,90m². De 194 à 214.000 EUR. 2 appartements 2ch avec balcon de 50,90m² et 56m². 219.000 EUR et 240.000 EUR. 3 appartements au 1er étage dont 2 appartements 1ch avec balcon de 43,80m² et 44,20m². Prix 197 et 199.000 EUR. 1 appartement 87,10m², 3ch, balcon, 407.000 EUR. 1 appartement au 2ième étage, 1ch, 43,80m², balcon. Prix 199.000 EUR Renseignements : Gregory WEINAND 0473/35.15.60 ou gw@immochl.be Livraison 3ième trimestre 2025 - PRIX TOUT COMPRIS HORS CUISINE
Type vastgoed Appartement
Prijs 194.000
Bewoonbare opp. 43
Aantal slaapkamers 1