Te koop Huis

Beschrijving van   

Vergelijk realty's

Te koop Huis

Huis Huis Huis Huis Huis Huis Huis Huis Huis Huis Huis Huis Huis Huis Huis
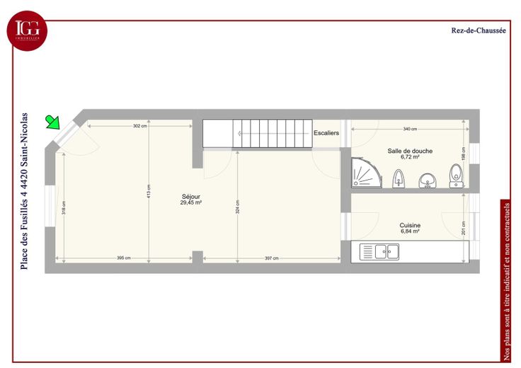
IGG à le plaisir de vous présenter cette maison de coin située au calme sur la commune de Saint-Nicolas (Tilleur), elle se compose : Au RDC un salon, une salle à manger, une salle de douche fonctionnelle, une cuisine semi-équipée donnant accès direct à une terrasse avec jardinet. Au 1er: Deux belles chambres de 15,89m² et 12,84m². Au 2ième: deux chambres de 15.89m² et 13.52m². La maison dispose également de deux caves. Châssis simple vitrage bois, électricité à revoir, chauffage par convecteur gaz. PEB E. RC : 358€ Facilité de parking à proximité, rue calme en cul-de-sac. Idéal comme premier achat. A visiter sans tarder ! Faire Offre. Infos et visites : 0489/84 99 99 ou contact@igg.immo
Type vastgoed Huis
Prijs Op aanvraag
Bewoonbare opp. 102
Aantal slaapkamers 4