Te koop Betaalbare nieuwbouw woning op een boogsch...

Beschrijving van   

Vergelijk realty's

Te koop Betaalbare nieuwbouw woning op een boogscheut van de kust

Betaalbare nieuwbouw woning op een boogscheut van de kust Betaalbare nieuwbouw woning op een boogscheut van de kust Betaalbare nieuwbouw woning op een boogscheut van de kust Betaalbare nieuwbouw woning op een boogscheut van de kust Betaalbare nieuwbouw woning op een boogscheut van de kust Betaalbare nieuwbouw woning op een boogscheut van de kust Betaalbare nieuwbouw woning op een boogscheut van de kust Betaalbare nieuwbouw woning op een boogscheut van de kust
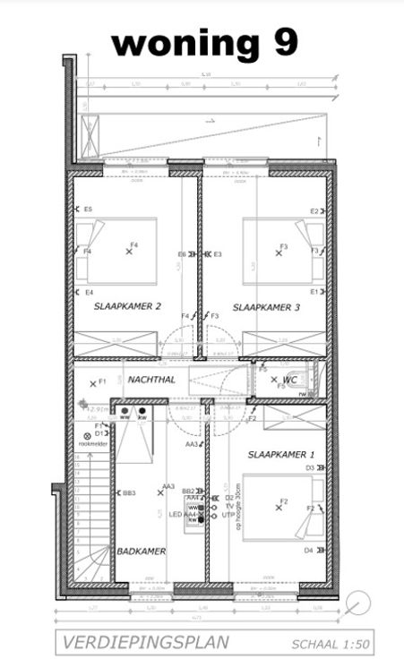
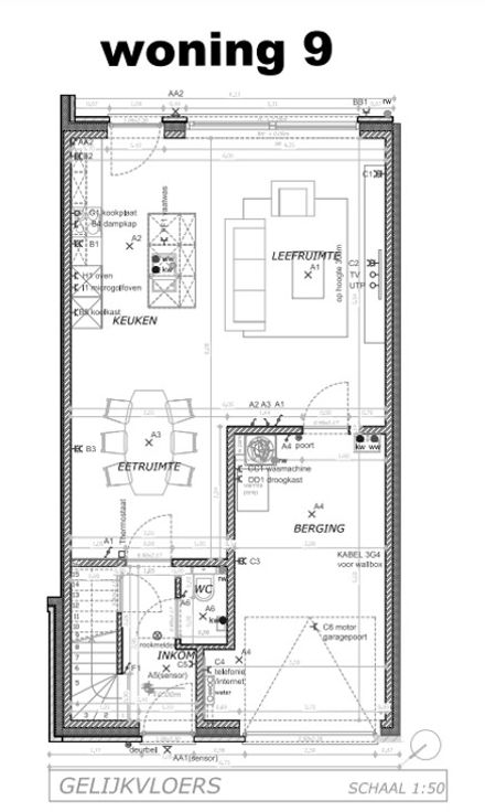
Betaalbare nieuwbouw woningen met hoge afwerkingsgraad en moderne verwarmings- en koelingstechnieken. Indeling woning: * inkom * toilet (2*) * woonkamer * open keuken * wasruimte * 3 slaapkamers * badkamer * zolder * tuin * garage De woningen worden uitgerust met kwalitatieve toestellen en hoogwaardige technieken: zonnepanelen, ventilatiesysteem, verwarming en koeling op een geïntegreerd systeem, ... Deze woning wordt verkocht onder de wet Breyne met BTW stelsel op de constructie en verkooprechten op de grondwaarde. Meer info op kantoor.
Type vastgoed Huis
Prijs 339.500
Aantal slaapkamers 3
Aantal badkamers 1