Te koop RUIM HANDELSPAND MET ENORME VITRINE OP CENTRALE LOCATIE
RESIDENTIE SATURNUS - GELIJKVLOERS
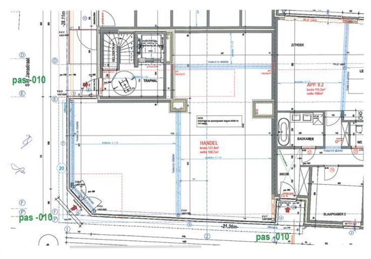
Handelsruimte van in totaal 122 m² (bruto vloer-oppervlakte) op tegel met zeer veel lichtinval dankzij grote vitrineramen.
Apart toilet met handenwasser. Kleedruimte op tegel met 2 inloopdouches. Berging/kitchenette op tegel.
Verder beschikt u over een fietsenstalling voor 4 fietsen.
BIJZONDERHEDEN
Driedubbele beglazing in PVC schrijnwerk. Airco (warmen en koelen). Tv-aansluiting. Mogelijkheid tot één grote ruimte.
POSITIEVE ASPECTEN
Centrale locatie
Mooie grote vitrineramen (16 m)
Polyvalente ruimtes
Hoekpand met mooie visibiliteit