Te koop Huis

Beschrijving van   

Vergelijk realty's

Te koop Huis

Huis Huis Huis Huis Huis Huis Huis Huis Huis Huis Huis Huis Huis Huis Huis Huis Huis Huis Huis Huis Huis Huis Huis Huis Huis Huis Huis Huis Huis
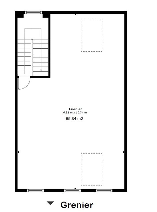
Très jolie maison de maître avec façade de caractère, idéalement située dans une des rues principales du centre-ville hannutois, d’un arrêt de bus et du Ravel vers Landen et Huy. Vous serez séduits par le charme et l’espace du salon et de la salle-à-manger, les boiseries intérieures et les moulures au plafond. La cuisine est entièrement équipée et dispose d’une buanderie et d’un débarras. Elle donne sur une jolie terrasse et le jardin. La maison dispose de 4 belles chambres, dont une qui se trouve à l’entre-sol, à côté de la salle de bain et les trois autres au 1er étage. Elle est en très bon état et a été bien rénovée, avec des matériaux de qualité. Aucun travail n’est à prévoir, sauf si vous envisager d’aménager le magnifique et très vaste grenier situé au 2ème étage. La chaudière, située dans une des caves, est très récente (gaz à condensation - 2021) et l’installation électrique dispose d’une attestation de conformité. Pour toute information et tout renseignements, merci de contacter l’agence via cette annonce, par e-mail à gv@barbiere.be ou par téléphone au 0479 54 76 01. Rem. : remettre offre sous réserve d’acceptation des propriétaires.
Type vastgoed Huis
Prijs 335.000
Bewoonbare opp. 173
Aantal slaapkamers 4
Aantal badkamers 1