Te koop Nieuw te bouwen halfopen woning te Lede.

Beschrijving van   

Vergelijk realty's

Te koop Nieuw te bouwen halfopen woning te Lede.

Nieuw te bouwen halfopen woning te Lede. Nieuw te bouwen halfopen woning te Lede. Nieuw te bouwen halfopen woning te Lede.
Zie je jezelf al staan voor deze voorbeeldwoning? Perfect. Wij luisteren naar jouw behoeftes en budget én ontwerpen zo een woning op maat. Dat klopt, deze woning is volledig te personaliseren volgens eigen stijl. Geen vaststaand ontwerp, wel een eigen thuis die kadert binnen jouw budget. Wij helpen je met onze expertise en kennis zodat jouw wooncomfort niet te kort schiet. Begint het ook al te kriebelen? Neem dan gerust contact op voor meer informatie. Mail naar aanvraag@yourhome.be of bel 056 755 788 Tip: Bezoek onze Kijkwoning na afspraak (zie www.yourhome.be/kijkwoning)
Type vastgoed Huis
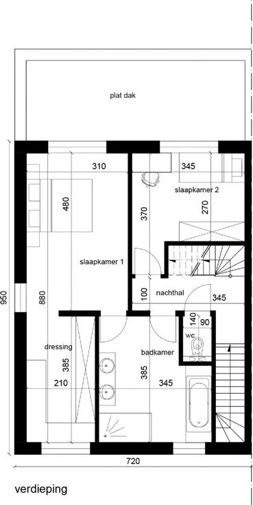
Prijs 523.216
Bewoonbare opp. 257
Aantal slaapkamers 2