Te koop Appartement

Beschrijving van   

Vergelijk realty's

Te koop Appartement

Appartement Appartement Appartement
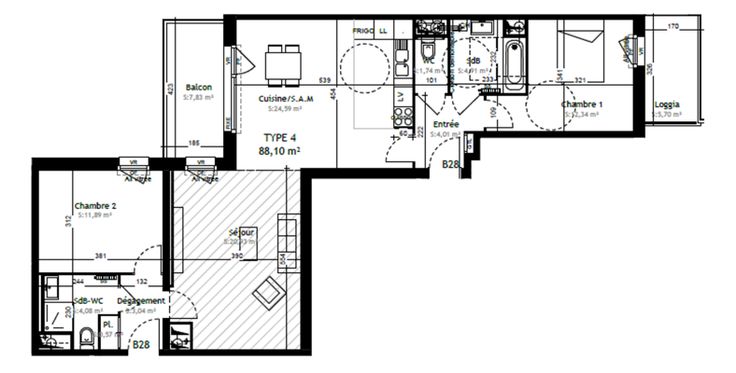
Dans une résidence en retrait de rue, au coeur d'un agréable parc paysager, découvrez cet appartement de 88 m2 baigné de lumière à Villeneuve-d'Ascq à quelques minutes des stations de métro 4 Cantons et Cité scientifique. Cet appartement a la particularité d'avoir 2 entrées. Tout tourne autour du salon de 21 m2 et de la salle à manger de 25 m2 avec sa cuisine ouverte non équipée donnant sur un balcon exposé sud-est. Les 2 chambres de 12 m2 sont à l'opposé l'une de l'autre et l'une des 2 dispose d'une loggia de 6 m2. On trouve encore une salle de bains avec baignoire et une salle de douche, toutes 2 équipées d'un meuble simple vasque et son bandeau lumineux et d'un radiateur sèche-serviette. Les 2 WC sont séparés. Au sous-sol, 2 boxs fermés sont rattachés à l'appartement. Vous trouverez du parquet contrecollé au sol du séjour, de l'entrée, du dégagement et des chambres et du carrelage au sols des WC et des salles d'eau. Volets roulants électriques dans toutes les pièces. Chauffage individuel au gaz. Local à vélos et à poussettes. Non soumis au DPE Disponible début 2025. Photos non contractuelles Prix de vente : 390 000 euros TTC Pour visiter et vous accompagner dans votre projet, contactez Marie-Hélène CILLUFFO, au 0785135740 ou par courriel à mh.cilluffo@proprietes-privees.com Selon l'article L.561.5 du Code Monétaire et Financier, pour l'organisation de la visite, la présentation d'une pièce d'identité vous sera demandée. Cette vente est garantie 12
Type vastgoed Appartement
Prijs 390.000
Bewoonbare opp. 88
Aantal slaapkamers 2
Aantal badkamers 1