Te koop MODERN ogende NIEUWBOUW gezinswoningen op TOPLIGGING!!
Op deze TOPLIGGING, langs een MOOIE GROENE LAAN, worden deze 4 MODERNE NIEUWBOUW gezinswoningen opgericht! U wordt VERRAST DOOR de MOOIE WOONRUIMTES! Bij het ontwerp van deze woningen werd er HEEL WAT BELANG gehecht aan een MAXIMALE LICHTINVAL, hierdoor worden deze woningen telkens voorzien van GROTE GLASPARTIJEN! Tevens beschikt iedere woning over een PRAKTISCHE INPANDIGE GARAGE, alsook een GEZELLIGE STADSTUIN!
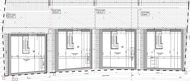
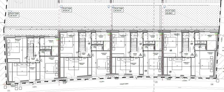
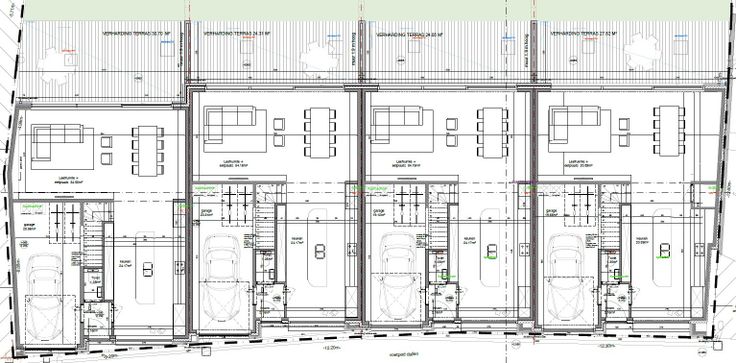
Iedere woning omvat op het gelijkvloers een inkomhal met gastentoilet, open leefkeuken aan de straatzijde, gezellige woonkamer met tuinzicht, een praktische garage met extra bergruimte. Op de bovenverdieping is er de nachthall, 2e afzonderlijk toilet, ingerichte badkamer en 3 slaapkamers. Via een zolderluik kan u de zolder bereiken, waar een extra kamer ook mogelijk is.
De totale oppervlaktes van de percelen variëren tussen de 186m² en 203m².
Als koper heeft u ruime inspraak in de keuze van de materialen.
E-peil 30,
Verkoop onder BTW-stelsel. Aankoop aan 6% BTW mogelijk!
Renovatieplicht: nee