Te koop Huis

Beschrijving van   

Vergelijk realty's

Te koop Huis

Huis Huis Huis Huis Huis Huis Huis
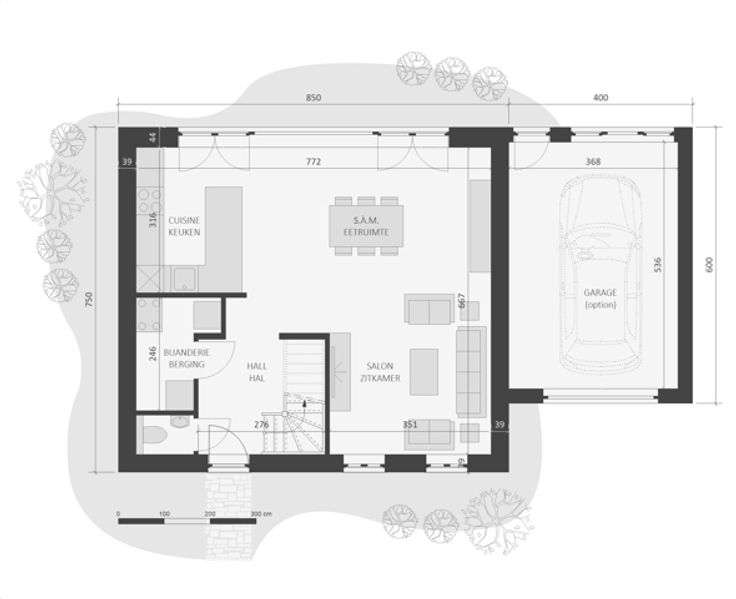
Nieuwbouw BEN Villa, sleutel-op-de-deur uitgevoerd in traditionele bouwstijl op een klasseperceel van 23,06 are. Zeer laag energiepeil E-peil categorie A+. De woning wordt voorzien van driedubbele beglazing, ventilatiesysteem type D, 14 fotovoltaïsche panelen, warmtepomp lucht/water, vloerverwarming, performante isolatie en hoogwaardige afwerking door ons sterk lastenboek. Tal van personalisatiemogelijkheden: indeling en materialen zijn vrij te kiezen. Meer info via Team Construct op het nummer: 02/556.47.56 of via info@teamconstruct.be, bezoek onze site www.teamconstruct.be, bezoek onze showroom te Sint-Pieters-Leeuw op afspraak. Prijs ALL-IN: 621.633€
Type vastgoed Huis
Prijs 535.986
Bewoonbare opp. 127
Aantal slaapkamers 3
Aantal badkamers 1