Te koop Huis

Beschrijving van   

Vergelijk realty's

Te koop Huis

Huis Huis Huis Huis Huis Huis Huis Huis Huis Huis Huis Huis Huis Huis
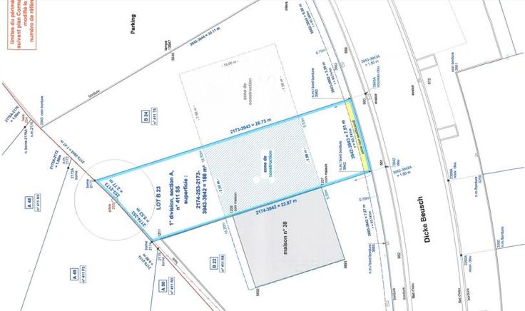
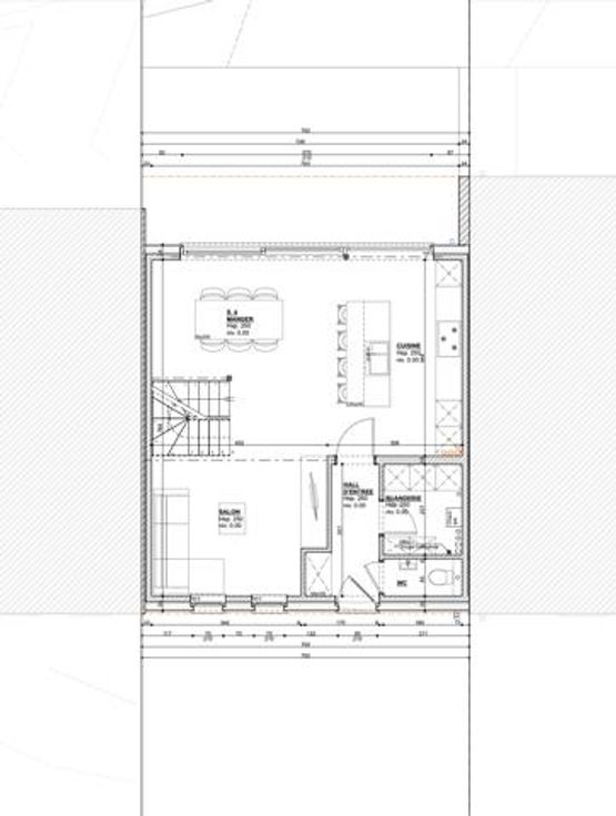
Découvrez cette nouvelle construction en gros œuvre couvert, prête à être aménagée selon vos goûts et vos envies. Située dans un quartier résidentiel calme, composé exclusivement de nouvelles constructions, cette maison bénéficie d'un emplacement idéal avec un accès facile à l’autoroute, à proximité des écoles et des supermarchés. Au rez-de-chaussée, vous profiterez d’ un séjour spacieux avec un espace pour cuisine ouverte, qui deviendra un lieu de vie très lumineux une fois aménagé. Vous y trouverez également une buanderie et un WC. Le 1er étage se compose de trois chambres, d'un dressing et d'une salle de bains. Le 2e  étage offre une grande pièce à aménager selon vos besoins, en chambre supplémentaire, en espace de loisirs ou en bureaux pour du télétravail. Vous profiterez également d'un jardin à l'abri des regards et d'un parking aisé. Ne manquez pas cette opportunité unique de personnaliser votre future maison dans un environnement paisible et moderne.
Type vastgoed Huis
Prijs 175.000
Bewoonbare opp. 110
Aantal slaapkamers 3
Aantal badkamers 1