Te koop Bouwgrond

Beschrijving van   

Vergelijk realty's

Te koop Bouwgrond

Bouwgrond Bouwgrond Bouwgrond Bouwgrond
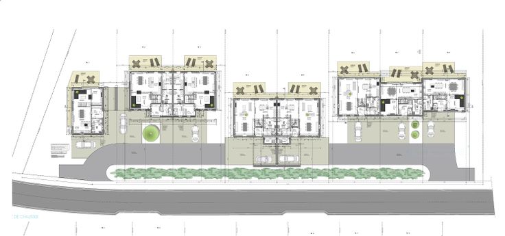
A vendre ce terrain de 1820 m2 situé dans le petit village de Braives au calme et proche des grands axes. Profitez de ce projet, prêt à construire et commencer votre chantier dès septembre. Un permis de bâtir a été accordé pour 8 maisons ( ce terrain est le terrain de droite avec permis de bâtir pour 3 maisons jointives). Le chemin privé devant les maisons sera construit par le vendeur ainsi que la pose des raccordements ( supplément de 24 000 € pour les 3 maisons ). L'architecte a été payé jusqu'au permis et le terrain est libre de constructeur. D'autres terrains sont disponibles ( 2 maisons 3 façades pour le prix de 134 000 €). Pas d'agence merci Informations et visites 0473/802021
Type vastgoed Grond
Prijs 170.000