Te koop Huis

Beschrijving van   

Vergelijk realty's

Te koop Huis

Huis Huis Huis Huis Huis Huis Huis Huis Huis Huis Huis Huis
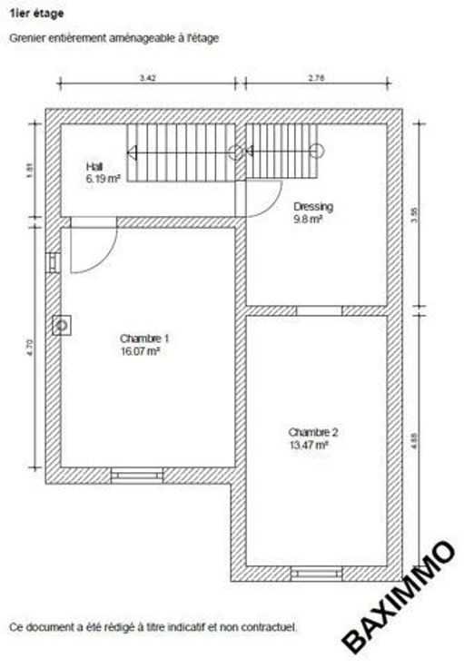
Charmante habitation en pierre du pays sise au calme, dans le village de Gochenée. Cette chaleureuse maison se présente en très bon état et est habitable de suite. Ce bien ne dispose pas d’extérieur. Convient idéalement à titre de seconde résidence ou comme premier achat ! A découvrir ! Possibilité de bénéficier de la réduction des droits d’enregistrement. COMPOSITION : Rez-de-chaussée : Séjour, cuisine/salle à manger, hall, buanderie, salle de douche et rangement. 1ier Etage : Hall de nuit, dressing et 2 chambres. 2ième Etage : Grenier aménageable.
Type vastgoed Huis
Prijs 125.000
Bewoonbare opp. 133
Aantal slaapkamers 2
Aantal badkamers 1