Te koop Handelszaak

Beschrijving van   

Vergelijk realty's

Te koop Handelszaak

Handelszaak Handelszaak Handelszaak Handelszaak Handelszaak
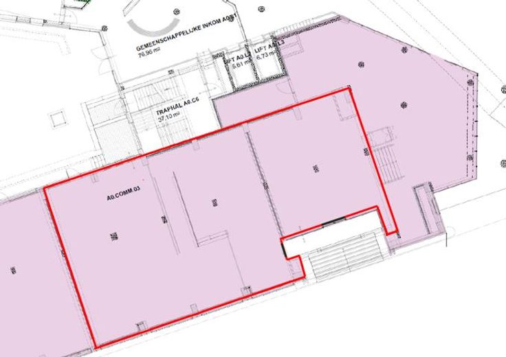
De Bonnefant, een unieke locatie in het centrum van Hasselt, tussen de Zuivelmarkt en de Demerstraat. Uw kantoor of handelszaak in een iconisch gebouw? Dat kan! Het bestaande RTT-gebouw is volledig gerenoveerd met het behoud van de Hasseltse authenticiteit en verder uitgebreid met energiezuinige nieuwbouw. Er rest nog slechts één unit van 270m² in dit prachtige project. Tussen de gebouwen van De Bonnefant is een groene doorsteek gecreëerd die de Demerstraat rechtstreeks verbindt met het begijnhof. Een extra groene beleving is verzekerd. KENMERKEN: - nieuwbouw - oppervlakte: 270m² - afwerking: casco (wind- waterdicht) - bestemming: handel, diensten, vrije beroepen (dit omvat ook koffiebar, taverne, brasserie, ...) TROEVEN: - toplocatie in Hasselt centrum - volledig zelf in te richten Verkoop onder btw-stelsel. Meer info: contacteer ons op 011/39.90.50
Type vastgoed Commercieel
Prijs 880.000
Bewoonbare opp. 270