Te koop App. op de 1ste verdieping met 1 slpk en t...

Beschrijving van   

Vergelijk realty's

Te koop App. op de 1ste verdieping met 1 slpk en terras

App. op de 1ste verdieping met 1 slpk en terras App. op de 1ste verdieping met 1 slpk en terras App. op de 1ste verdieping met 1 slpk en terras App. op de 1ste verdieping met 1 slpk en terras App. op de 1ste verdieping met 1 slpk en terras App. op de 1ste verdieping met 1 slpk en terras App. op de 1ste verdieping met 1 slpk en terras App. op de 1ste verdieping met 1 slpk en terras App. op de 1ste verdieping met 1 slpk en terras App. op de 1ste verdieping met 1 slpk en terras
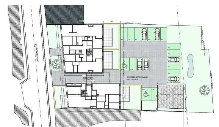
In de Stationsstraat, die dwars door Herzele loopt, komt een nieuw project met 19 appartementen - Residentie Miel. De tijdloze architectuur en de smaakvolle combinatie van materialen maakt van Residentie Miel een heerlijke plek om thuis te komen. Appartement 1.5 gelegen op de eerste verdieping beschikt over een bewoonbare oppervlakte van 68 m² bestaande uit: inkomhal met apart toilet, open keuken, leefruimte, 1 slaapkamer en 1 badkamer. Bovendien heeft het appartement aangelegd terras van 9 m². De grote raampartijen zorgen voor een natuurlijke lichtinval en verhogen het wooncomfort. Er is zonwering voorzien om een aangenaam binnenklimaat te behouden. Achter de appartementen zijn 19 parkeerplaatsen voorzien, waarvan twee voor mindervaliden.Daarnaast is er ook een overdekte fietsenstalling en een afvalberging. Huurgarantie van 18 jaar kan aangeboden worden, wat deze aankoop een ideale investering maakt. Mogelijkheid tot aankoop onder het verlaagd BTW-tarief. De appartementen worden volledig afgewerkt incl. keuken en sanitaire toestellen aangeboden. De gepubliceerde prijs is de prijs excl. kosten-koper. Voor verdere inlichtingen kan U zich richten tot Immo Gosseye op het nummer 055 42 60 26 of via info@immo-gosseye.be.
Type vastgoed Appartement
Prijs 214.550
Aantal slaapkamers 1
Aantal badkamers 1