Te koop Huis

Beschrijving van   

Vergelijk realty's

Te koop Huis

Huis Huis Huis Huis Huis Huis Huis Huis
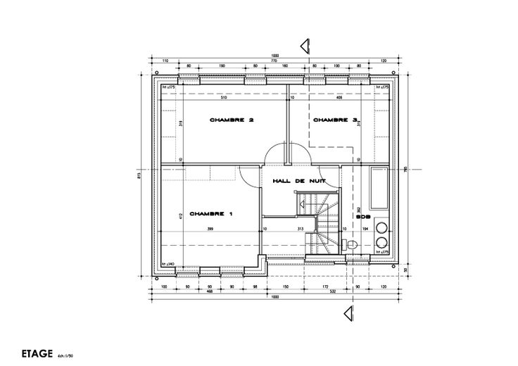
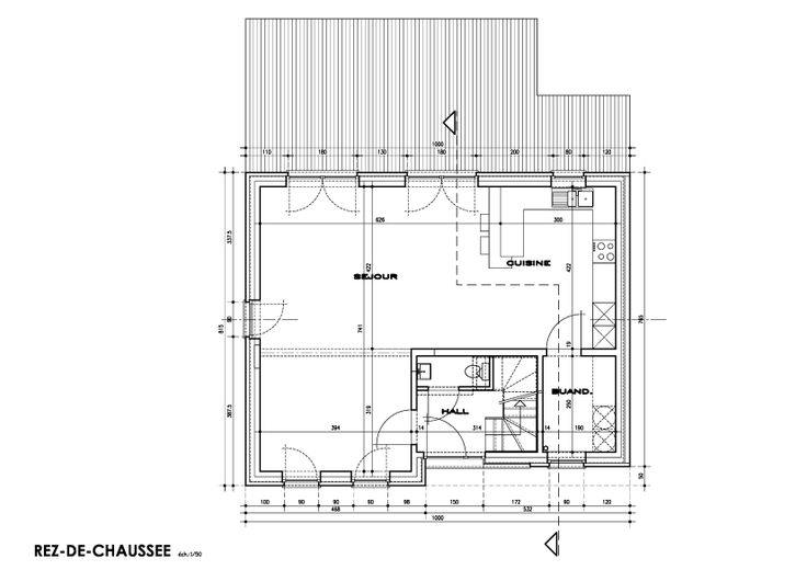
Si vous êtes à la recherche d'un magnifique terrain afin de pouvoir y bâtir votre projet de construction, nous avons ce qu'il vous faut ! Nous vous proposons ce terrain qui se situe dans le charmant village de Solières à Huy. Celui-ci possède une superficie de 1.555 m², une façade de 27 mètres et 57 mètres de profondeur. Sa localisation est excellente car en effet, vous allez pouvoir profiter des commerces tels que des restaurants, des supermarchés et des pompes à essence qui sont situés à seulement 5 minutes. La N90, quant à elle, se trouve à 5 minutes et elle vous permettra de rejoindre Liège ainsi que la ville de Namur. Nous vous proposons un projet de construction de 150 m² composé comme suit : Au rez-de-chaussée, vous retrouverez un séjour extrêmement lumineux avec une belle cuisine ouverte, une buanderie ainsi qu'un hall d'entrée et un WC. L'étage, quant à lui, se compose d'un beau hall de nuit vous permettant d'accéder à une salle de bain et 3 chambres. Ce projet est entièrement modulable et personnalisable selon vos envies et vos désirs. Ce projet + le terrain pour un prix de 286.753,00 €HTVA et frais d'architecte. Le prix est à titre indicatif et pourra être modifié en fonction de la personnalisation du projet. Pour plus de renseignements, nous restons disponibles durant les heures de bureau.
Type vastgoed Huis
Prijs 286.753
Bewoonbare opp. 150
Aantal slaapkamers 3
Aantal badkamers 1