Te koop huis met 3 slaapkamers

Beschrijving van   

Vergelijk realty's

Te koop huis met 3 slaapkamers

huis met 3 slaapkamers huis met 3 slaapkamers huis met 3 slaapkamers huis met 3 slaapkamers huis met 3 slaapkamers huis met 3 slaapkamers huis met 3 slaapkamers huis met 3 slaapkamers huis met 3 slaapkamers huis met 3 slaapkamers huis met 3 slaapkamers huis met 3 slaapkamers huis met 3 slaapkamers huis met 3 slaapkamers huis met 3 slaapkamers huis met 3 slaapkamers huis met 3 slaapkamers huis met 3 slaapkamers
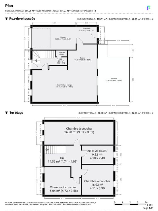
ONDER OPTIE !!! ERA ONEHOME biedt je een ruime woning met 4 slaapkamers, gebouwd in 2009. Gelegen in het populaire dorp Gesves. Met een bewoonbare oppervlakte van 171 m2, bestaat het uit: op de begane grond, een lichte woonkamer die uitkomt op een open keuken van in totaal +/-47 m2. Op de eerste verdieping, 3 grote slaapkamers, een bureau en een badkamer (bad + douche) van +/-10 m2. Op de tweede verdieping maken een 4e slaapkamer en een dressing met een totale oppervlakte van +/-30 m2 deze woning compleet. Garage en wasruimte met een oppervlakte van +/-23 m2. Centrale verwarming op stookolie, met vloerverwarming op de begane grond en radiatoren op de bovenverdieping. Terrein van 5,8 are. PEBB. RC 772€. Doe een bod vanaf 329.000€. Onder voorbehoud van aanvaarding door de eigenaren. Neem voor meer informatie of een bezichtiging contact met ons op via 085/21.61.52
Type vastgoed Huis
Prijs 329.000
Bewoonbare opp. 171
Aantal slaapkamers 4
Aantal badkamers 1