Te koop Eigentijds wonen met een landelijke twist

Beschrijving van   

Vergelijk realty's

Te koop Eigentijds wonen met een landelijke twist

Eigentijds wonen met een landelijke twist Eigentijds wonen met een landelijke twist Eigentijds wonen met een landelijke twist Eigentijds wonen met een landelijke twist Eigentijds wonen met een landelijke twist
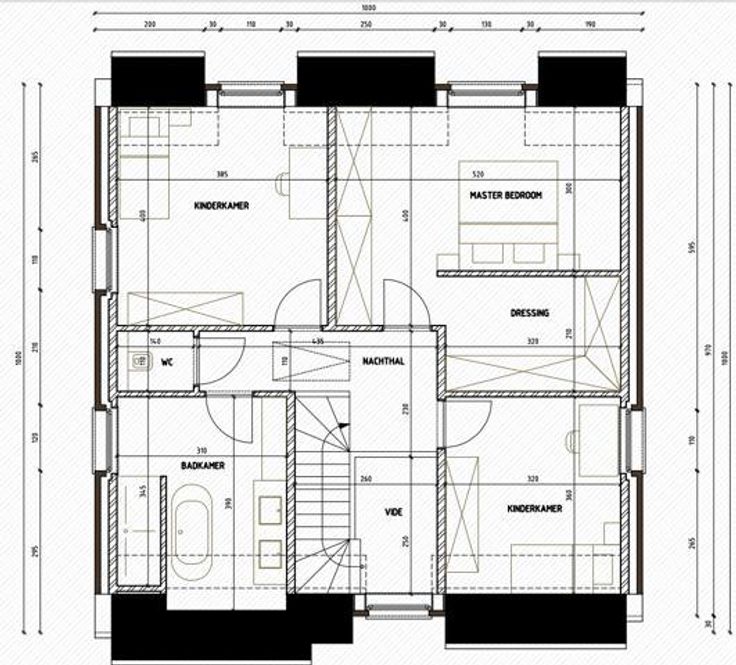
In Massemen, een landelijke deelgemeente van  Wetteren, realiseert Unicas dit woonproject in perfecte harmonie met de omgeving waarin het is ingebed. Lambroekveld bestaat uit acht ééngezinswoningen, in open en halfopen verband.  Hoewel Unicas kiest voor een landelijk ontwerp, en het gebruik van degelijke materialen, heb je als toekomstige bewoner nog de mogelijkheid de afwerking van de woning te personaliseren.  Immers, je kiest zelf de afwerkingsmaterialen, geheel naar eigen smaak, bij één van onze leveranciers. Elk van deze woningen is door zijn doordacht concept compact maar toch ruim tegelijk.  En vermits Unicas ze bouwt, is een verzorgde uitvoering gegarandeerd!  Elk van de woningen beschikt over een ruime leefruimte, een aangename en lichtrijke keuken, drie slaapkamers, een badkamer en bergzolder.  Een aantal beschikt zelfs over een inpandige garage. Door gebruik te maken van de laatste technieken, zijn de woningen in de Lambroekstraat bijzonder energiezuinig.  De verzorgde plaatsing van isolatie en ramen zorgen voor een goed geïsoleerd geheel, terwijl het balansventilatiesysteem dat standaard is voorzien zorgt voor een aangenaam binnenklimaat.  Bovendien is elke woning voorzien van een vloerverwarmingssysteem op het gelijkvloers.  Al deze troeven maken van Lambroekveld een uniek woonproject, dat trots de Unicas – stempel van UNIEK WONEN waarmaakt. Zie je jezelf hier wonen, of heb je vragen, neem dan snel contact met ons op.
Type vastgoed Huis
Prijs 542.907
Bewoonbare opp. 196
Aantal slaapkamers 3
Aantal badkamers 1