Te koop Huis

Beschrijving van   

Vergelijk realty's

Te koop Huis

Huis Huis Huis Huis Huis Huis Huis Huis Huis Huis Huis Huis Huis Huis Huis Huis Huis
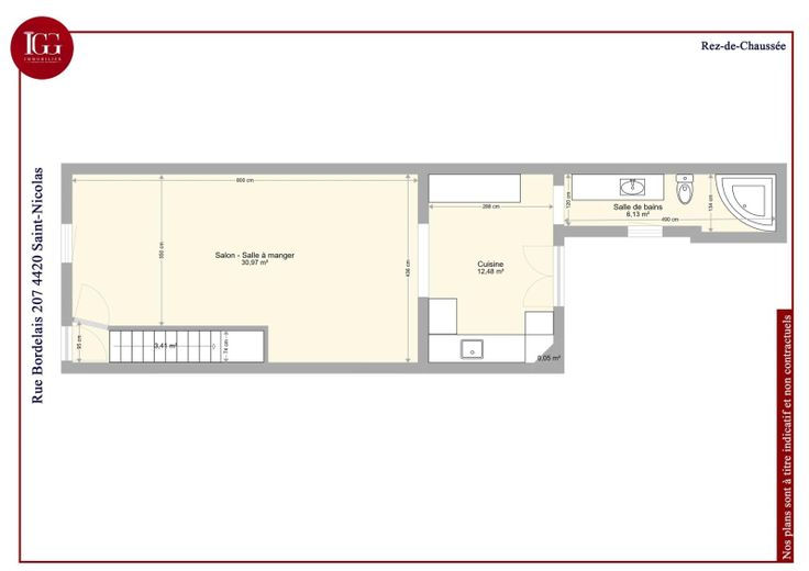
IGG IMMO à le plaisir de vous proposer cette maison coup de coeur située sur Tilleur. Elle se compose d'un hall d'entrée, un charmant séjour avec coin salon, une belle cuisine équipée donnant accès à une cour extérieur et à la salle de bain. Au 1er deux belles chambres dont une avec espace dressing. Au deuxième une troisième chambre mansardée. Électricité conforme, chauffage central au mazout( chaudière remplacée 2012) toujours entretenue, châssis DV PVC, toiture bon état. RC: 480€ pouvant donner droit à la réduction des droits d'enregistrement , PEB E. Décorée avec goût cette maison n'attends plus que vos meubles. Actuellement louée, disponibilité à convenir entre les parties. Infos et visites : 0489/84 99 99 ou contact@igg.immo
Type vastgoed Huis
Prijs Op aanvraag
Bewoonbare opp. 125
Aantal slaapkamers 3
Aantal badkamers 1