Te koop Nieuwbouw KMO-Unit van 189m² (met aansluit...

Beschrijving van   

Vergelijk realty's

Te koop Nieuwbouw KMO-Unit van 189m² (met aansluiting op WARMTENET)

Nieuwbouw KMO-Unit van 189m² (met aansluiting op WARMTENET) Nieuwbouw KMO-Unit van 189m² (met aansluiting op WARMTENET) Nieuwbouw KMO-Unit van 189m² (met aansluiting op WARMTENET) Nieuwbouw KMO-Unit van 189m² (met aansluiting op WARMTENET) Nieuwbouw KMO-Unit van 189m² (met aansluiting op WARMTENET) Nieuwbouw KMO-Unit van 189m² (met aansluiting op WARMTENET) Nieuwbouw KMO-Unit van 189m² (met aansluiting op WARMTENET)
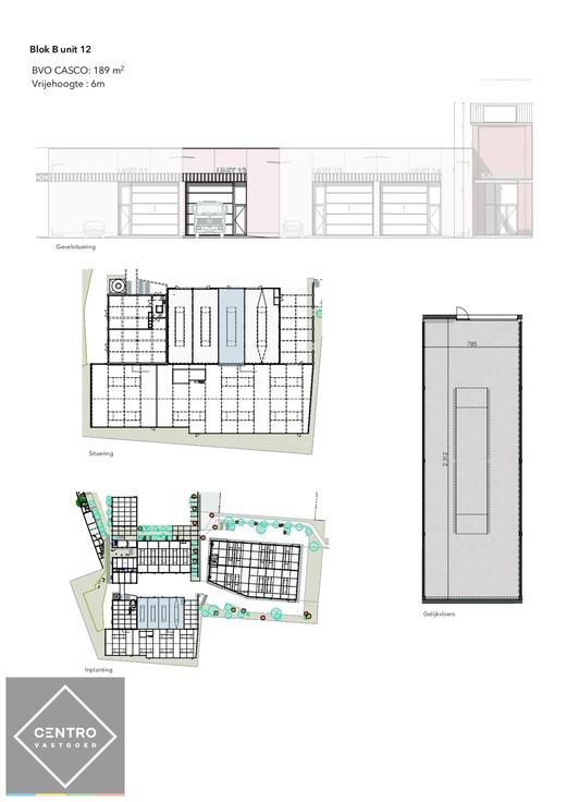
Diverse andere afmetingen beschikbaar, met of zonder kantoorruimte !AFWERKING:- Staalstructuur met vrije hoogte van 6m in de hallen.- Gevelwanden in geïsoleerde rode prefab betonpanelen (sandwichconstructie met binnenblad van 8cm getrild beton, 10cm PIR en buitenblad van 6cm glad bekist beton).- Op de gevel is een plaats voorzien voor uniforme reclame van de verschillende bedrijven. Deze plaats is voor iedere loods uniform. De reclame op de gevel zal op kosten van de koper geplaatst worden.- Scheidingswanden, binnenwanden in cellenbetonplaten: waar nodig brandweerstanden voorzien RF60' en RF120'. De verticale voegen worden dichtgespoten met een elastische kit.- Scheidingswanden, binnenwanden in prefabbeton: dikte min. 12cm, voegen wordenopgespoten met een elastische kit.- Gepolierde betonvloer 15cm dik op een PE-folie, gewapend met net 150/150/5/5. Afgewerkt met kwarts, en ingezaagd met open krimpvoegen welke niet opgespoten worden. Voorziene belasting 1.000kg/m².- Dakstructuur in metalen dakplaten (steeldeck RAL 9002) geïsoleerd met PIR platen (12cm) en TPO-dakbedekking 1,5mm.- In het dak van het magazijn is een lichtstraat of een lichtdoorlatende RWA voorzien.- Structuur + dak voorzien voor plaatsen PV installatie met max. belasting van 15kg/m².- 1 elektrische sectionaalpoort, aluminium geïsoleerde panelen. (b: 4,00m -h: 4,20m) met aparte loopdeur.- Buitenschrijnwerk in aluminium (raam-, poort- en deurkaders). Op vloerniveau dorpels in blauwe hardsteen, op de verdieping
Type vastgoed Commercieel
Prijs 297.459
Bewoonbare opp. 189