Te huur Kantoor te huur

Beschrijving van   

Vergelijk realty's

Te huur Kantoor te huur

Kantoor te huur Kantoor te huur Kantoor te huur
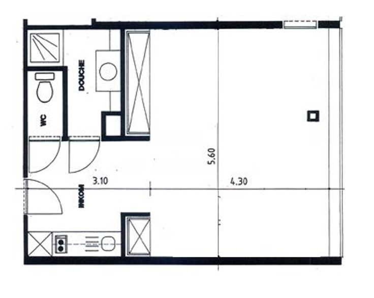
Kantoorruimte met kitchenette, toilet en doucheruimte (42M²). Gelegen op een bedrijventerrein met ruime parking rond gebouw. Lift aanwezig in het gebouw.
Type vastgoed Commercieel
Prijs 625
Bewoonbare opp. 42
Aantal badkamers 1