Te koop Huis

Beschrijving van   

Vergelijk realty's

Te koop Huis

Huis Huis Huis Huis Huis Huis Huis Huis Huis Huis Huis Huis Huis Huis Huis Huis Huis Huis Huis Huis Huis Huis Huis Huis Huis Huis Huis Huis
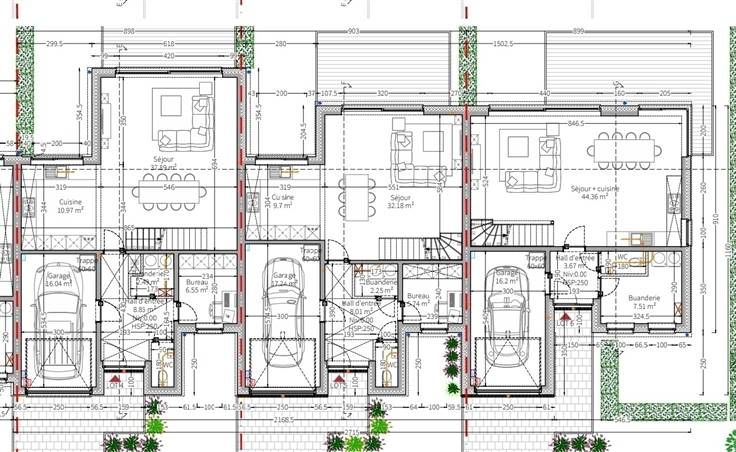
Ontdek de charme van het plattelandsleven in ons nieuwe Qzen-project! Droomt u van een ruime, moderne woning midden in de natuur? Zoek niet verder, wij hebben de perfecte plek voor jou! Met veel plezier presenteren wij u 6 prachtige nieuwe huizen met adembenemend uitzicht over de velden, gelegen in een betoverende landelijke omgeving. Deze huizen bieden 3 ruime slaapkamers, een garage, fotovoltaïsche panelen en een warmtepomp die het hele jaar door een optimaal thermisch comfort garanderen. De royale oppervlakte varieert tussen de 140m² en 170m². Elk huis wordt sleutelklaar verkocht, klaar om uw gezin te verwelkomen vanaf eind mei 2024. Profiteer van de mogelijkheid om in een rustige omgeving te wonen en tegelijkertijd te profiteren van de voordelen van een modern en ecologisch verantwoord huis. De nieuwe woningen hebben een afwerking van topkwaliteit en bieden veel natuurlijk licht in elke kamer. Wacht niet langer en investeer in uw levenskwaliteit! Deze woningen, variërend van 140m² tot 170m², zijn afhankelijk van hun grootte beschikbaar tussen €340.000 en €395.000. BTW tegen 21%. Neem vandaag nog contact met ons op om uw plaats in deze oase van rust te reserveren.
Type vastgoed Huis
Prijs 340.000
Bewoonbare opp. 170
Aantal slaapkamers 3
Aantal badkamers 2