Te koop Grond

Beschrijving van   

Vergelijk realty's

Te koop Grond

Grond Grond Grond
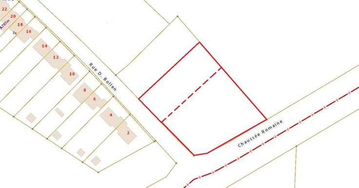
Très beau terrain à bâtir à proximité immédiate des grands axes autoroutiers. Nous proposons ici un terrain de 20 m de large pour une surface de +/- 1.136 m². D’autres divisions sont possibles (1 seul logement par terrain). Vue arrière dégagée sur la campagne. Nombreuses possibilités de construction. Renseignez-vous vers la société JOASSIN Construction pour réfléchir à votre projet. Le prix est hors frais d’achat et hors infrastructures. Il faut ajouter également le plan du géomètre JOASSIN (+/- 1.350 Eur) ainsi que l’indemnité au fermier. Vente soumise à acceptation de division.
Type vastgoed Grond
Prijs 110.000