Te koop KMO unit te koop Sint-Gillis-Waas

Beschrijving van   

Vergelijk realty's

Te koop KMO unit te koop Sint-Gillis-Waas

KMO unit te koop Sint-Gillis-Waas KMO unit te koop Sint-Gillis-Waas KMO unit te koop Sint-Gillis-Waas KMO unit te koop Sint-Gillis-Waas KMO unit te koop Sint-Gillis-Waas KMO unit te koop Sint-Gillis-Waas KMO unit te koop Sint-Gillis-Waas KMO unit te koop Sint-Gillis-Waas KMO unit te koop Sint-Gillis-Waas KMO unit te koop Sint-Gillis-Waas KMO unit te koop Sint-Gillis-Waas
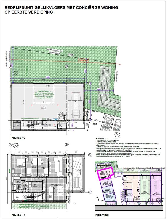
Casco KMO UNITS te koop te Sint-Gillis-Waas in de Sint-Niklaasstraat ter hoogte van nr 131. Hieronder een indicatie van de prijzen excl. BTW excl. Bijkomende Kosten excl. Notaris / registratie - CASCO KMO Unit 7 start vanaf €238.500 - CASCO KMO Unit 8 start vanaf €229.500 - CASCO KMO Unit 9 start vanaf €229.500 - CASCO KMO Unit 10 + appartement start vanaf €579.500 Indien je interesse hebt voor één van deze units kan er een persoonlijke offerte opgemaakt worden. Splinternieuwe magazijnen, kantoor en appartement beschikbaar in het 'Bedrijvenpark WILLY SMET'. Prestigieus project op vlak van energieprestatie, lage milieu-impact en werkcomfort. Strategisch gelegen in de Sint-Niklaasstraat te Sint-Gillis. Dit bedrijvenpark zal ontwikkeld worden in 2025. Het is een kwalitatief project met 10 KMO UNITS waarbij we duurzame materialen gebruiken. Al deze units zijn ideaal als investering. Bent u op zoek naar een magazijn zonder of met een appartement boven zodat u bij uw zaak kan wonen? Dan zijn deze units iets voor jou!
Type vastgoed Commercieel
Prijs 238.500