Te koop Huis

Beschrijving van   

Vergelijk realty's

Te koop Huis

Huis Huis Huis Huis Huis Huis Huis Huis Huis Huis Huis Huis Huis Huis Huis Huis Huis Huis Huis Huis Huis Huis Huis
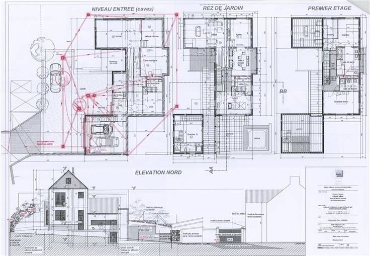
Ontdek deze uitzonderlijke architectonische villa van 524m² op 22 are 40 cA, dichtbij winkels, scholen. Laat u verleiden door de lichte ruimtes die een vrij uitzicht bieden op de hoogten van Ottignies. Met zijn 5 slaapkamers, zijn douche- en badkamerruimtes, zijn gezellige woonkamer, zijn uitgeruste keuken, evenals een uitzonderlijke wijnkelder, het terras op het zuiden, compleet met doucheruimte, kan deze residentie geschikt zijn voor een groot gezin en vrij beroep. Het bestaat uit een parkeerplaats voor 4/5 auto's, een garage voor 2 auto's. Een inkomhal met privétoegang en professionele toegang. Een gezellige woonkamer met houtkachel, een eetkamer, een bibliotheek/kantoor en een nieuwe ingerichte keuken. 5 grote slaapkamers waaronder eenZou je willen bezoeken? Contacteer ons op 0476/33.60.22 of op WWW.sabrinafederico.be
Type vastgoed Huis
Prijs 1.200.000
Bewoonbare opp. 455
Aantal slaapkamers 5
Aantal badkamers 1