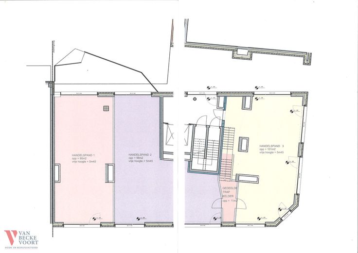
Te koop Handelsgelijkvloers 90 m²

Beschrijving van   

Vergelijk realty's

Te koop Handelsgelijkvloers 90 m²

Handelsgelijkvloers 90 m² Handelsgelijkvloers 90 m² Handelsgelijkvloers 90 m² Handelsgelijkvloers 90 m² Handelsgelijkvloers 90 m²
Subliem gelegen handelsgelijkvloers met een oppervlakte van 90 m². Residentie Rialto is gelegen in de bruisende stadskern van Oostende. Het vele lichtinval is mede te danken aan de bijzonder grote glaspartijen en de vrije plafondhoogte van 5m45. Casco oplevering waardoor de inrichting naar eigen beleven kan worden ingevuld. Er zijn meerdere handelsdoeleinden mogelijk (ook horeca). De hoge plafonds, grote glaspartijen en mooie oppervlakte geven een onevenaarbaar ruimtegevoel en werkelijk winkel-/horecabelevenis. Extra troeven: - gunstige energiescore en E-peil; - mogelijk om samen aan te kopen met de andere twee units; - terraszones kunnen voorzien worden (mits aanvraag bij Stad Oostende); - vrij bij het verlijden van de notariële akte; - meerdere handelsbestemmingen mogelijk. Locatie is alles! Dit pand dank zijn commerciële ligging door de aanpalende trendy shopping- en horecastraten (Adolf Buylstraat, Langestraat, Madridstraat en Hertstraat). Door de strategische ligging nabij Zeedijk, casino en winkelstaten is zowel dag- als avonduitbating mogelijk. Deze buurt is vol ontwikkeling (nieuwbouwappartementen, assistentieflats, lokale handelaars met een nieuwe zaak... Bent U de volgende? Ideaal geschikt voor een investeerder of voor een ondernemer die zijn business naar een hoger niveau wil tillen in een moderne residentie. De prijs valt onder het btw-regime. Renovatieplicht: nee
Type vastgoed Commercieel
Prijs 270.000
Bewoonbare opp. 90