Te koop Zeer energiezuinige halfopen nieuwbouw met...

Beschrijving van   

Vergelijk realty's

Te koop Zeer energiezuinige halfopen nieuwbouw met 3 slpk

Zeer energiezuinige halfopen nieuwbouw met 3 slpk Zeer energiezuinige halfopen nieuwbouw met 3 slpk Zeer energiezuinige halfopen nieuwbouw met 3 slpk
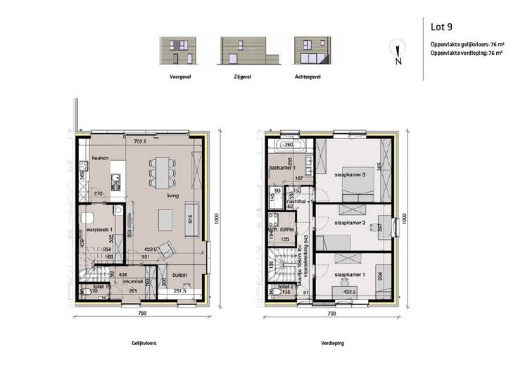
In deze nieuwe doodlopende verkaveling 'Biezenvelden' te Beerzel realiseren we 12 uiterst energiezuinige woningen in een moderne stijl. Deze halfopen woning op lot 9 is in opbouw op een mooi perceel van 323m² waar je in de zomer van de zuiderzon kan genieten. GLVLS: inkom, vestiaire, wc, lichtrijke living met zicht op tuin en ingerichte keuken met eiland, grote wasplaats en bureauruimte.1ste VERD.: drie slpk, wc, badk. met ligbad, douche en badkamermeubel met dubbele lavabo en berging. De woning beschikt over zonnepanelen, vloerverwarming en warmtepomp. Samen met de regenwaterput van 10.000L voldoet deze woning dus aan alle normen voor de toekomst en bespaar je op je woonkost. De prijs is excl. btw en kosten.  Download de brochure op onze website https://durabrik.immo/beerzel  Voor meer info bel naar het gratis nummer 0800/62 732 of mail naar info@durabrik.be Renovatieplicht: nee
Type vastgoed Huis
Prijs Op aanvraag
Bewoonbare opp. 152
Aantal slaapkamers 3
Aantal badkamers 1