Te koop Half open BEN-woning op perceel grond van ...

Beschrijving van   

Vergelijk realty's

Te koop Half open BEN-woning op perceel grond van 5a 62ca

Half open BEN-woning op perceel grond van 5a 62ca Half open BEN-woning op perceel grond van 5a 62ca Half open BEN-woning op perceel grond van 5a 62ca Half open BEN-woning op perceel grond van 5a 62ca Half open BEN-woning op perceel grond van 5a 62ca Half open BEN-woning op perceel grond van 5a 62ca Half open BEN-woning op perceel grond van 5a 62ca
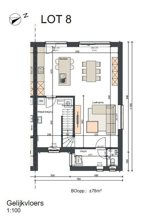
In de Ten Edestraat in Nazareth realiseert Groep Huyzentruyt een nieuw woonproject met 8 energiezuinige woningen. Je woont er in een landelijke gemeente, op een boogscheut van Gent, Deinze en Oudenaarde. De halfopen bebouwingen hebben een praktisch ingerichte leefruimte met open keuken die in optimale verbinding staat met de tuin, 3 ruime slaapkamers en een badkamer met bad en douche. Bovendien zijn het stuk voor stuk BEN-woningen, zodat je energiezuinig kan leven. Ze zijn uitgerust met een warmtepomp, vloerverwarming op het gelijkvloers en statische convectoren op het verdiep. Lot 8 kent een totale perceeloppervlakte van 5a 62ca. De nieuwbouwwoning zal over een bewoonbare vloeroppervlakte beschikken van 143 m². Voor verdere inlichtingen kan U zich richten tot Immo Gosseye op het nummer 055 42 60 26 of via info@immo-gosseye.be. Renovatieplicht: onbekend
Type vastgoed Huis
Prijs Op aanvraag
Bewoonbare opp. 143
Aantal slaapkamers 3
Aantal badkamers 1