Te huur Kantoren

Beschrijving van   

Vergelijk realty's

Te huur Kantoren

Kantoren Kantoren Kantoren Kantoren Kantoren Kantoren Kantoren Kantoren Kantoren Kantoren Kantoren Kantoren Kantoren Kantoren Kantoren Kantoren
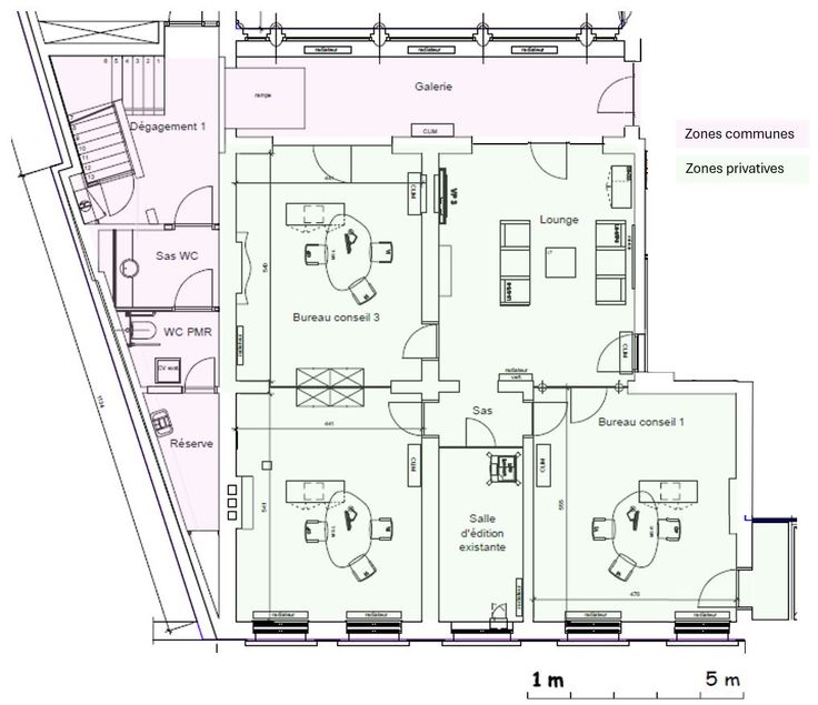
Dans un magnifique bâtiment de maître avec un parc privatif de 15 ares, nous louons un espace de 3 bureaux lumineux et lounge aménagés avec goût. Situé au rez-de-chaussée, à 2 pas de la gare et du centre-ville mais dans un endroit calme et sans problème de trafic, cet ensemble vous séduira par bien des aspects. Il se compose de 6 pièces dont 1 salle d’attente / zone commune qui peut servir également de bureau, 1 hall, 3 bureaux et 1 réduit de rangement. Sanitaires communs avec 2 autres bureaux. Tout est en parfait état et aucun aménagement n’est à prévoir. Les bureaux sont climatisés. Nous fournissons la connexion internet et la possibilité d’avoir 1 ligne téléphonique directe. Possibilité d’entrée indépendante. Opportunité de louer meublé. Des salles de réunion sont disponibles à la location dans le bâtiment. Plusieurs possibilités de restauration à proximité. Accès : Arrêt de bus devant le bâtiment. 1 km de la gare (12 minutes à pied). Parking gratuit à proximité immédiate et possibilité de places de parking privées. Parking vélos.
Type vastgoed Commercieel
Prijs 2.500
Bewoonbare opp. 120