Te koop Huis

Beschrijving van   

Vergelijk realty's

Te koop Huis

Huis Huis Huis Huis Huis Huis
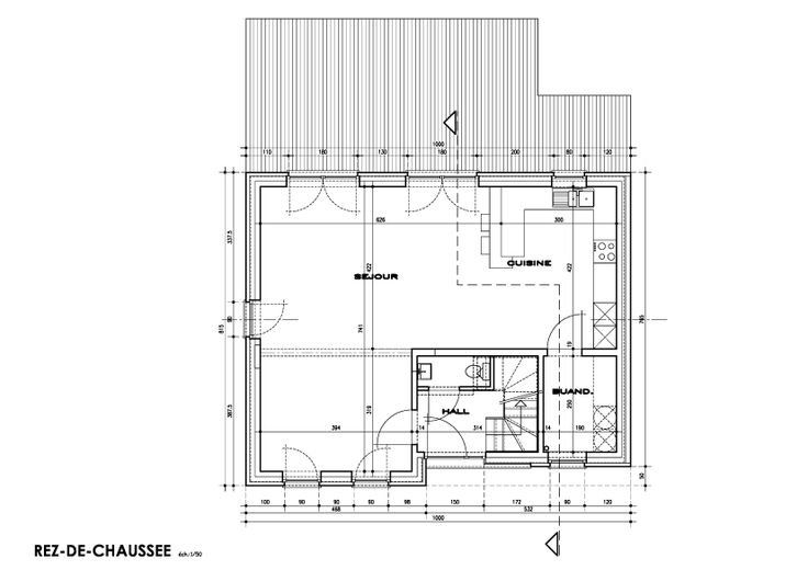
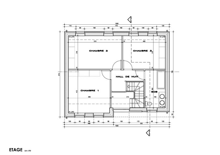
Contact : Monsieur Mariani (IPI 103.174) : 0475/23.62.76 C'est dans un beau cadre forestier, dans une charmante ville du nom de Nassogne, que Maisons Compère, vous propose ce nouveau projet de construction 4 façades. Ce terrain de 1.150 m² possède une superbe orientation SUD. Il se situe dans une rue en cul-de-sac et niché dans un cadre enchanteur. Sa localisation est idéale car il se situe entre Rochefort, Marche-en-Famenne et Saint-Hubert. Le centre de Rochefort se trouve à une dizaine de minutes en voiture. Maisons Compère, vous propose un projet de 150 m² qui se compose comme suit : Au rez-de-chaussée, vous retrouverez un hall avec un WC qui donnera un accès à un séjour lumineux avec une cuisine ouverte ainsi qu'une buanderie. Un hall de nuit, se trouvant à l'étage, vous donnera accès à 3 belles chambres à coucher avec une salle de bain et un WC. Prix du terrain + projet de construction : 265.732,00 € HTVA et frais d'architecte.* Ce projet peut être personnalisé pour répondre au mieux à votre idéal, voir être totalement revu suivant vos désirs. Intéressé par ce projet ? Monsieur Mariani (IPI 103.174) reste disponible au 0475/23.62.76.
Type vastgoed Huis
Prijs 265.732
Bewoonbare opp. 150
Aantal slaapkamers 3
Aantal badkamers 1