Te koop Appartementsblok

Beschrijving van   

Vergelijk realty's

Te koop Appartementsblok

Appartementsblok Appartementsblok Appartementsblok Appartementsblok Appartementsblok
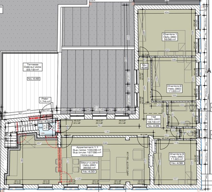
Projet de 5 appartements de standing, un double garage, un garage simple et un espace garage de type zone de stockage de 50m² à vendre sur Carnières en gros œuvre fermé. Permis accepté en 04/2024. Appartement de standing avec et sans jardin. Voir plans en annexe. Prix désiré avec permis, plans et métré : 460.000 euros. Dossier disponible sur simple demande. info@sd-ac.be ou 0498/13.53.32 Agence et curieux s'abstenir.
Type vastgoed Huis
Prijs 460.000
Aantal slaapkamers 6