Te koop Huis

Beschrijving van   

Vergelijk realty's

Te koop Huis

Huis Huis Huis
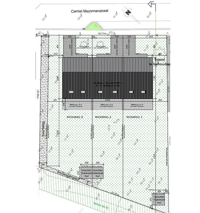
Dit nieuwbouwproject bestaande uit 3 aaneengesloten woningen vindt U in hartje Wijnendale (deelgemeente van Torhout), gelegen tussen Torhout en Ichtegem. Heel wat belangrijke voorzieningen vindt U op wandelafstand. INDELING VAN DE WONING GELIJKVLOERS * Inkomhal met trap naar boven * Gastentoilet * Leefruimte met open keuken VERDIEP 1 * 3 slaapkamers * Nachthal met zolderluik * Dressingruimte * Badkamer * Apart toilet * Extra berging ZOLDERVERDIEP * zolder OVERIG * Inpandige garage
Type vastgoed Huis
Prijs 333.000
Aantal slaapkamers 3