Te koop Bouwgrond

Beschrijving van   

Vergelijk realty's

Te koop Bouwgrond

Bouwgrond Bouwgrond Bouwgrond Bouwgrond Bouwgrond Bouwgrond Bouwgrond Bouwgrond Bouwgrond Bouwgrond
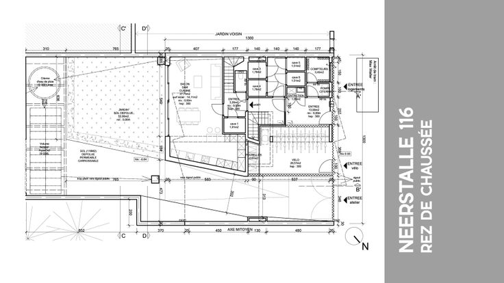
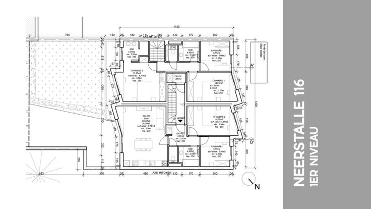
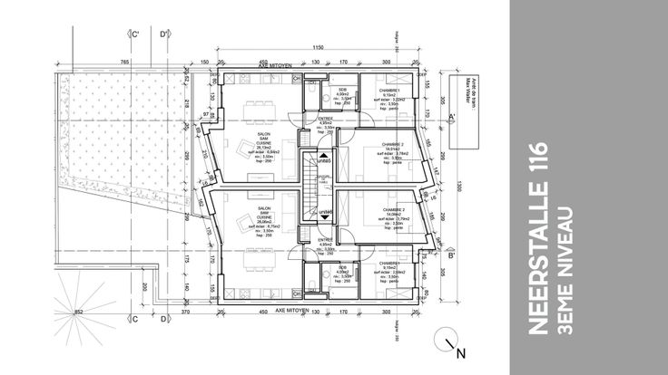
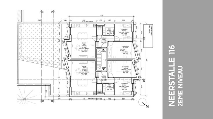
BEWELCOME PRESENTE (IPI516792) Permis d'urbanisme (PU 27274) obtenu le 13 janvier 2022 pour la construction (après démolition) d'un immeuble de 6 appartements avec une surface habitable de 502 m². Description du Projet selon le permis : Rez-de-chaussée : Côté Rue : Locaux techniques, caves, espaces communs et rangements (poubelles, vélos, poussettes, entretien, hall d'entrée), buanderie. Côté Jardin : Séjour du duplex 3 chambres (131 m² selon PEB) avec accès à un jardin de 53 m². Servitude de passage vers atelier-entrepôt en intérieur d’îlot. 1er Étage : 1er étage du duplex 3 chambres. Un appartement 2 chambres de 74 m². 2e et 3e Étage : 4 appartements 2 chambres de 74 m² chacun, répartis à raison de 2 appartements par étage. Informations Complémentaires : Pas de parking - Partie de la parcelle à assainir (10 m³ de terre à retirer). Plans d’exécution de l’atelier d’architecture OF7. Dossier d’appel d’offre : métré, étude de stabilité, étude PEB, étude de sol, étude de pollution, plans de détails complet disponibles sur demande. Pour plus d'informations, veuillez contacter Nathalie au : 0495 630 929
Type vastgoed Grond
Prijs 450.000