Te koop Huis

Beschrijving van   

Vergelijk realty's

Te koop Huis

Huis Huis Huis Huis Huis Huis Huis Huis Huis Huis Huis Huis
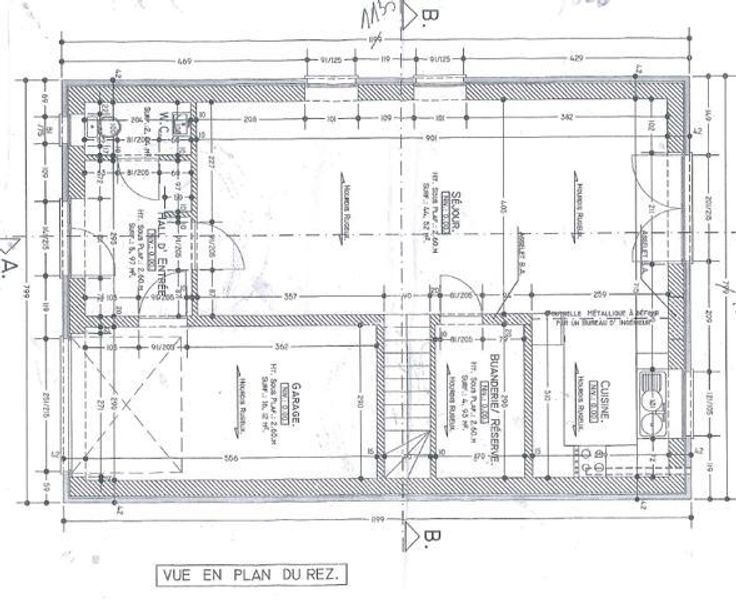
Réf.: 1864. Maison gros œuvre couvert-fermé de 4 chambres avec garage bien située proche des commodités et axes routiers! Elle se compose au rez-de-chaussée: d'un hall d'entrée, un WC individuel un beau séjour avec espace cuisine, une buanderie et un garage. A l'étage: un hall de nuit desservant 4 chambres, une salle bain et un grenier aménageable en 2 ou 3 chambres supplémentaires. A l'extérieur: un parking privatif, un passage latéral et un jardin. Le passage latéral et les abords avant vont être bétonnés. L'installation électrique est effectif et l'installation chauffage en cours. Faire offre à partir de 210.000,00€. VENTE SOUS REGIME TVA! Informations communiquées à titre indicatif et non contractuel. Les propriétaires se réservent le droit d'apprécier la hauteur et la qualité des offres. N’hésitez pas à visiter notre site internet : www.century21-performance.be. Nous sommes constamment à la recherche de nouveaux biens pour nos clients en attente, n'hésitez pas à nous contacter au 065/460.000 pour UNE ESTIMATION GRATUITE ET SANS ENGAGEMENT! Concernant le choix de l'acquéreur; les critères de sélection du propriétaire ne sont pas uniquement le prix. Le choix reste à l'appréciation de ce dernier qui seul, en décidera.
Type vastgoed Huis
Prijs 210.000
Bewoonbare opp. 200
Aantal slaapkamers 4
Aantal badkamers 1